EasyManua.ls Logo

Lenovo ThinkSystem SR650 V3 7D75 - Page 444

Lenovo ThinkSystem SR650 V3 7D75
518 pages
To Next Page IconTo Next Page
To Next Page IconTo Next Page
To Previous Page IconTo Previous Page
To Previous Page IconTo Previous Page
Loading...
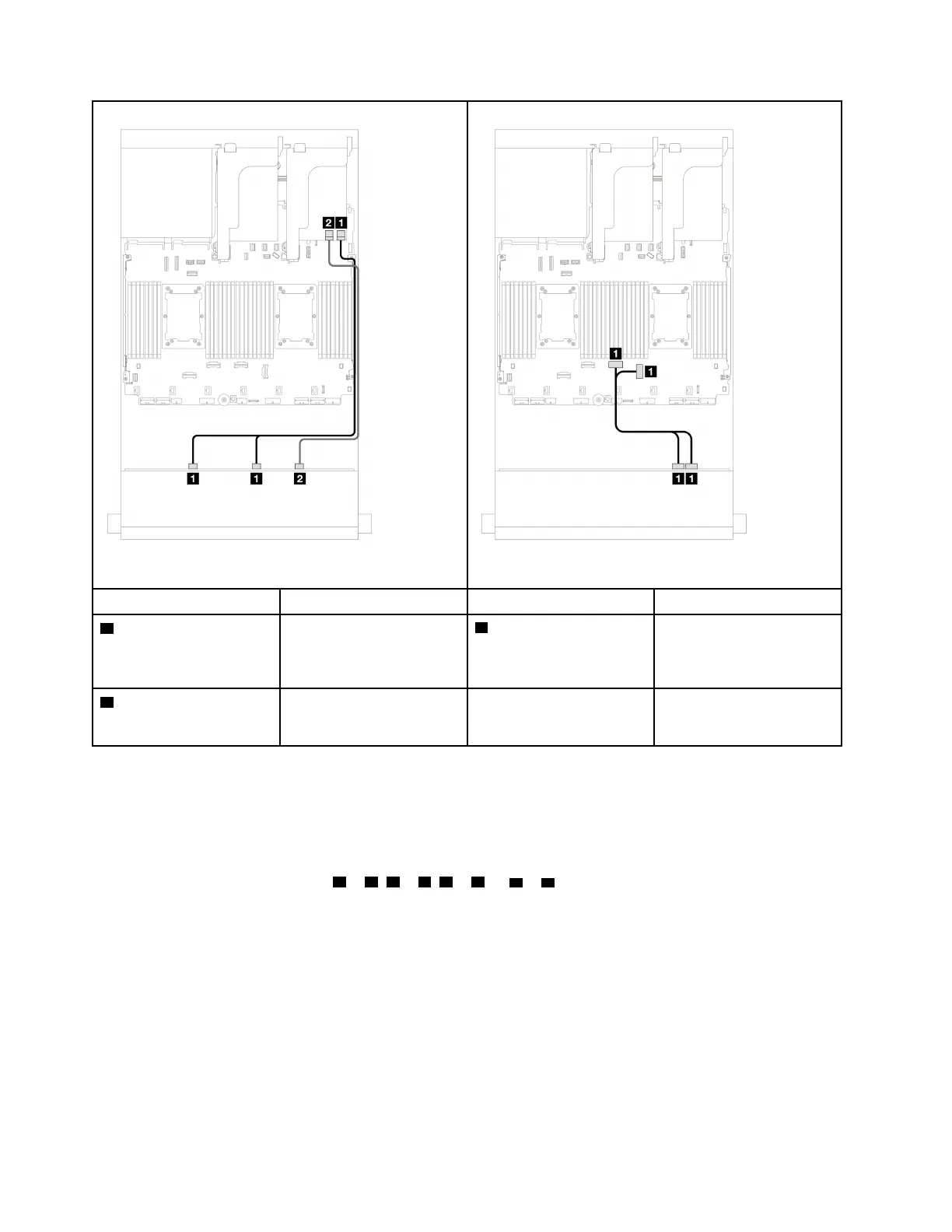
Figure 454. SAS/SATA cable routing Figure 455. NVMe cable routing
From To From To
1 Backplane 1: SAS 0,
SAS 1
16i adapter
Gen 4: C0
Gen 3: C0C1
1 Backplane 1: NVMe 8-9,
10-11
Onboard: PCIe 3, 4
2 Backplane 1: SAS 2
Gen 4: C1
Gen 3: C2
Front + rear backplanes: (8 SAS/SATA + 4 AnyBay) + 4 SAS/SATA
This topic provides cable routing information for the (8 SAS/SATA + 4 AnyBay) + 4 SAS/SATA configuration
using the 12 x 3.5-inch AnyBay front backplane and 4 x 3.5-inch SAS/SATA rear backplane.
16i RAID/HBA adapter
Connections between connectors:
1 1 , 2 2 , 3 3 , ... n n
434 ThinkSystem SR650 V3 User Guide

Table of Contents

Related product manuals