EasyManua.ls Logo

Lenze i55AE155F - 3 Mechanical Installation; Dimensions

Lenze i55AE155F
702 pages
Print Icon
To Next Page IconTo Next Page
To Next Page IconTo Next Page
To Previous Page IconTo Previous Page
To Previous Page IconTo Previous Page
Loading...
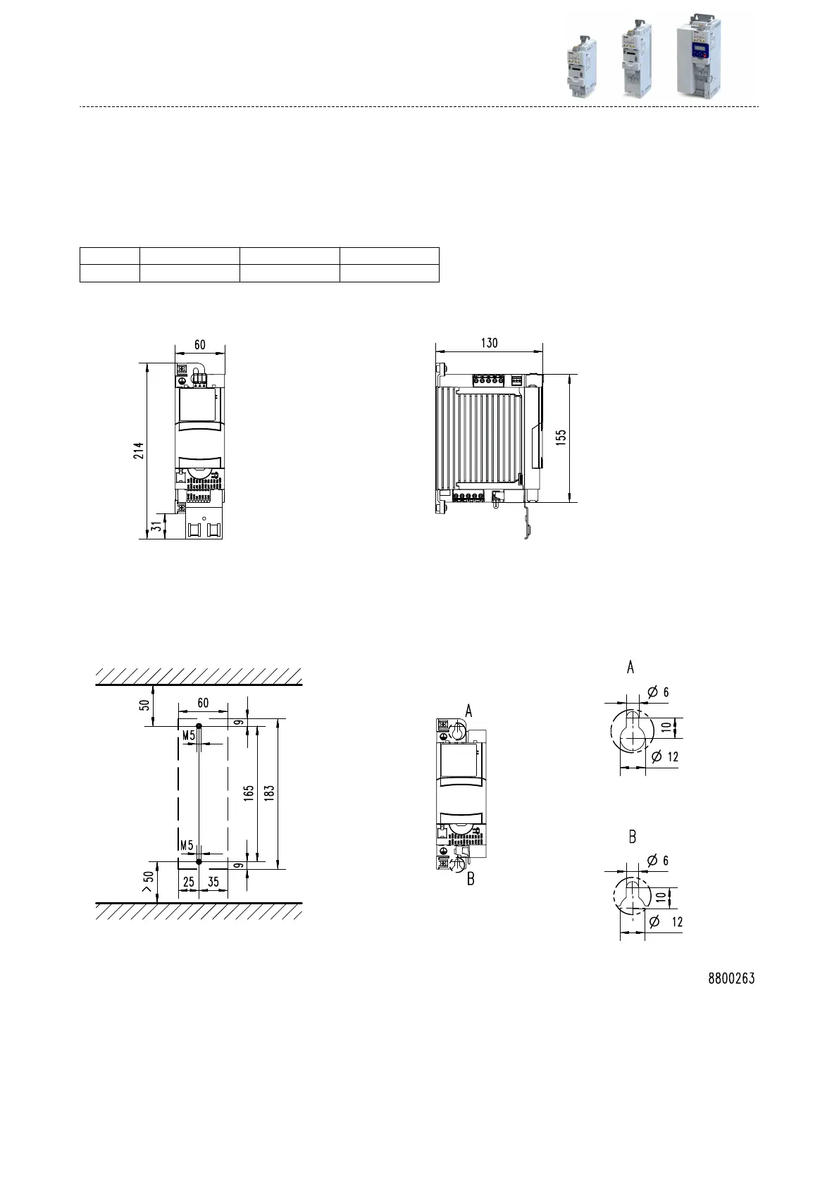
3 Mechanical installaon
3.1 Dimensions
0.25 kW ... 0.37 kW
The dimensions in mm apply to:
0.25 kW I55AE125B I55AE125D
0.37 kW I55AE137B I55AE137D I55AE137F
Mechanical installaon
18

Table of Contents

Related product manuals