EasyManua.ls Logo

Lenze i55AE155F - Page 21

Lenze i55AE155F
702 pages
Print Icon
To Next Page IconTo Next Page
To Next Page IconTo Next Page
To Previous Page IconTo Previous Page
To Previous Page IconTo Previous Page
Loading...
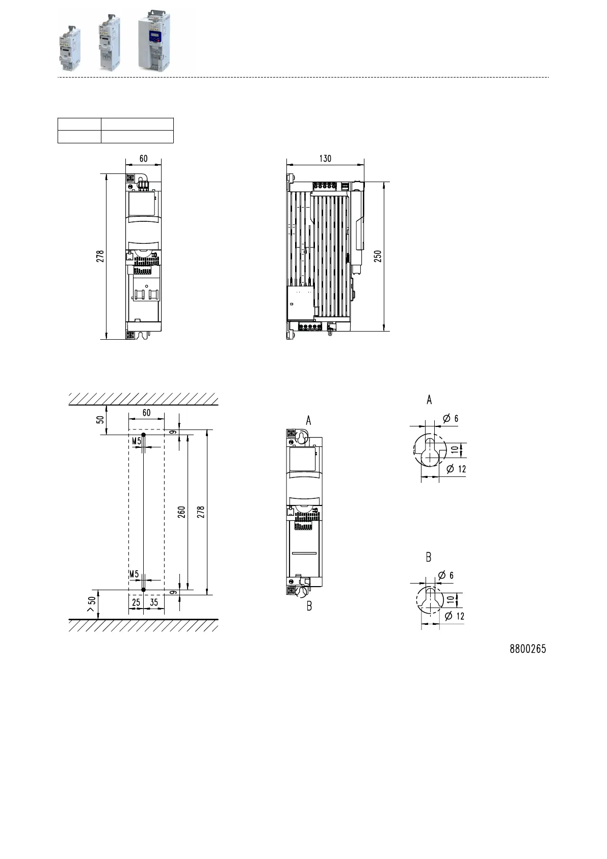
0.75 kW ... 1.1 kW
The dimensions in mm apply to:
0.75 kW I55AE175A
1.1 kW I55AE211A
Mechanical installaon
Dimensions
21

Table of Contents

Related product manuals