EasyManua.ls Logo

Nordson ProBlue Flex - Theory Of Operation

Nordson ProBlue Flex
418 pages
Print Icon
To Next Page IconTo Next Page
To Next Page IconTo Next Page
To Previous Page IconTo Previous Page
To Previous Page IconTo Previous Page
Loading...
Description
2-7
Part 1128350_02
E 2020 Nordson Corporation
Theory Of Operation
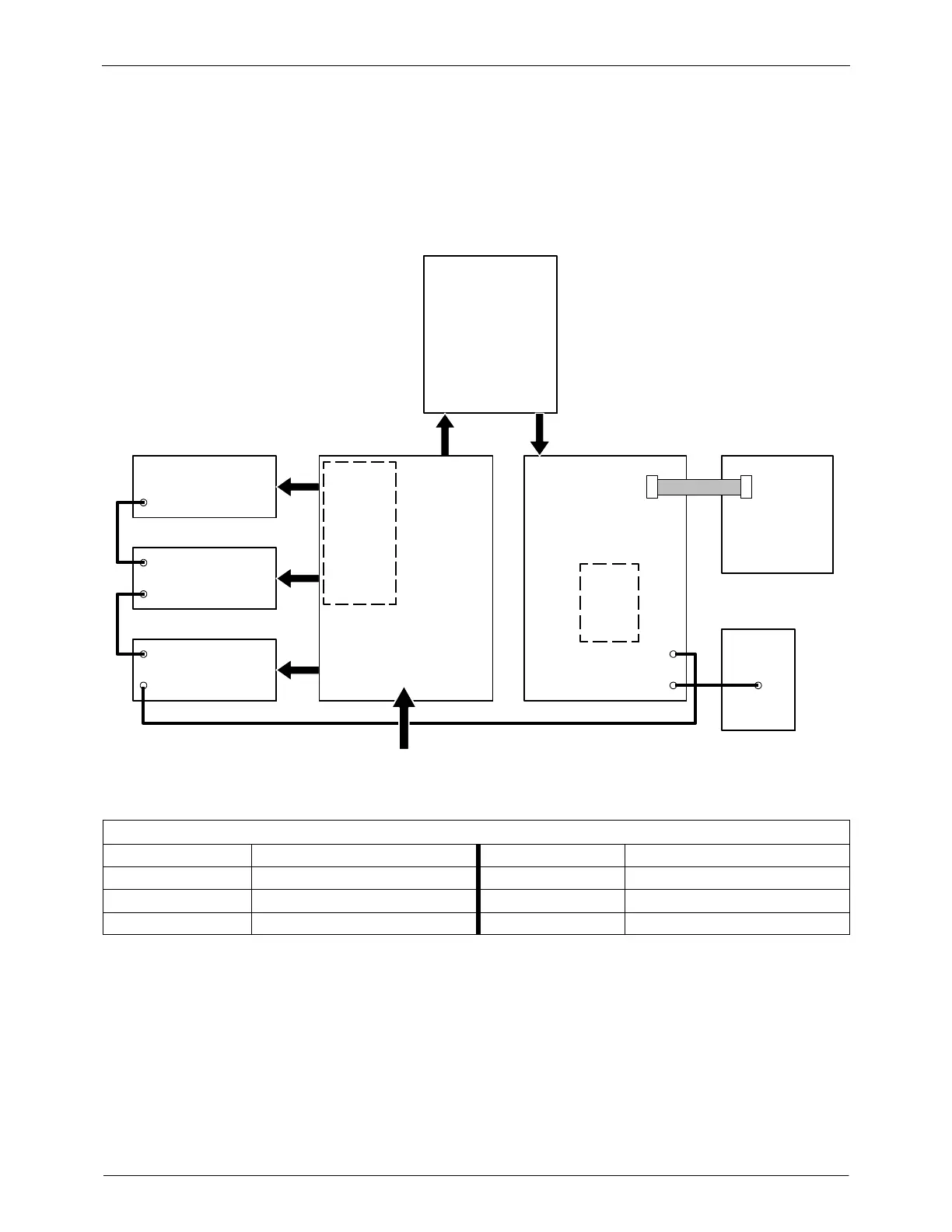
The following diagram gives an overview of the system and its architecture.
Understanding the functional blocks within the system and how they relate to
each other can help with understanding the entire system and how it
operates.
1
2
AC
ALS
AC
DC PS
AC
AC
AC
DC
PD
UI
PD EXP LVC
TC 4
OAC
TC 4
TC 6
Figure 2-5 Block diagram
Key to the block diagram:
TC Temperature Control OAC Optional Accessory Cards
PD Power Distribution DC PS DC Power Supply
PD EXP Power Distribution Expansion UI User Interface
LVC Low Voltage Controller ALS Adhesive Level Sensor

Table of Contents

Other manuals for Nordson ProBlue Flex

Related product manuals