EasyManua.ls Logo

Omron SYSMAC CJ - REFERENCE MANUAL 08-2008 - Page 1203

Omron SYSMAC CJ - REFERENCE MANUAL 08-2008
1405 pages
Print Icon
To Next Page IconTo Next Page
To Next Page IconTo Next Page
To Previous Page IconTo Previous Page
To Previous Page IconTo Previous Page
Loading...
1163
Failure Diagnosis Instructions Section 3-30
Precautions When the time monitoring function is being used, the execution condition for
FPD(269) must remain ON for the entire monitoring time set in T.
The execution condition for FPD(269) must be made up of a combination of
normally open and normally closed inputs.
The error-processing block is optional. When an error-processing block is
included, be sure to use outputs or other right-hand instructions. LD and LD
NOT cannot be used at this point.
FPD(269) can be used more than once in the program, but each instruction
must have a unique register (R) setting.
The monitoring time is refreshed only when FPD(269) is executed. If the cycle
time is longer than 100 ms, the monitoring time will not be refreshed normally
and FPD(269) will not operate correctly because the monitoring time is
updated in units of 100 ms.
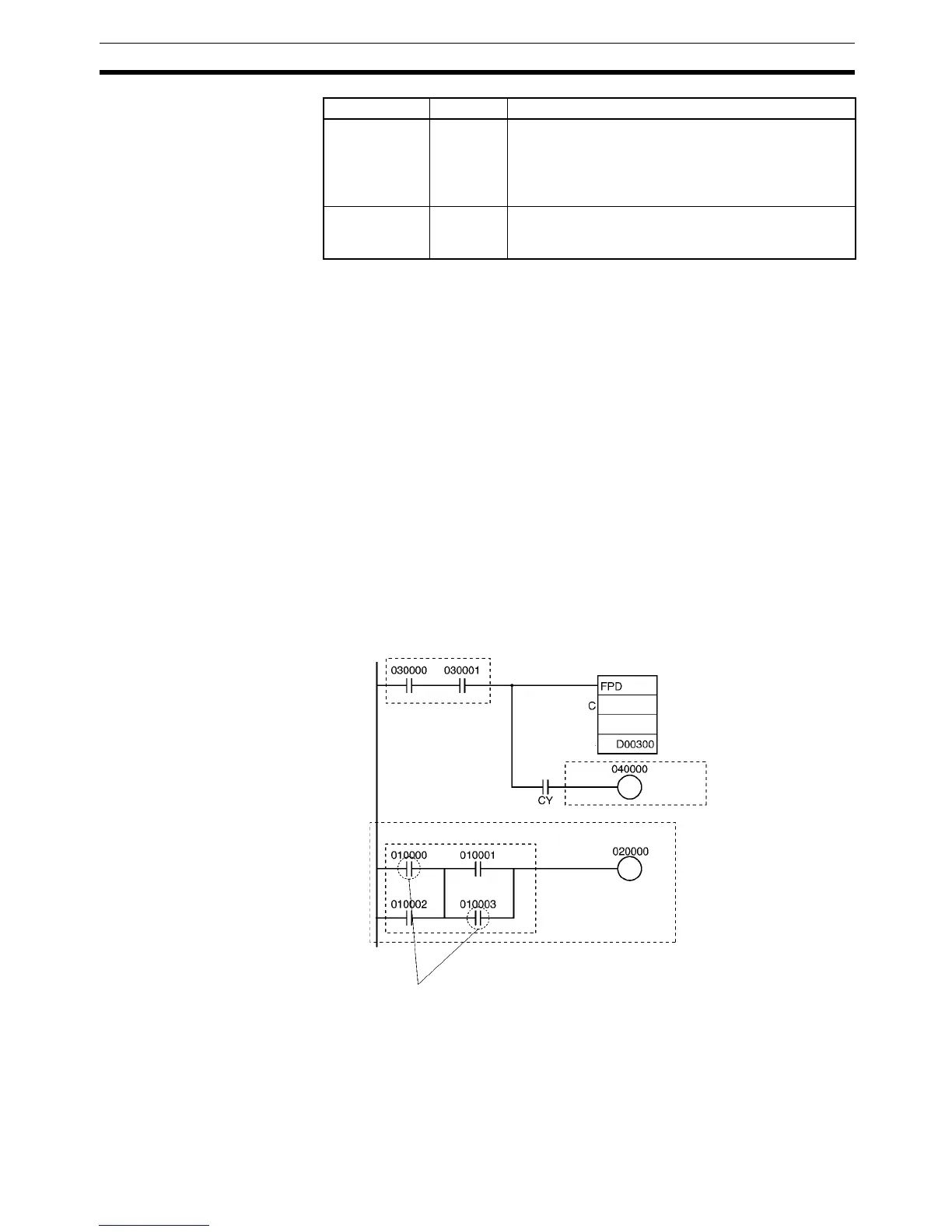
Examples The following program example is used to demonstrate the operation of the
time monitoring function and logic diagnosis function. In this example, the
diagnostic output (CIO 020000) does not go ON because CIO 010000 and
CIO 010003 remain OFF in the logic diagnosis execution condition.
Time Monitoring Function
If the diagnostic output (CIO 020000) does not go ON within 10 seconds after
CIO 030000 and CIO 030001 are both ON, a non-fatal error will be generated
and the following processing will be performed.
1,2,3... 1. The Carry Flag is turned ON.
Error code A400 When an error occurs its error code is stored in A400.
The error codes for FAL numbers 0001 to 01FF are
4101 to 42FF, respectively.
If two or more errors occur simultaneously, the error
code of the most serious error will be stored in A400.
FPD Teaching
Bit
A59800 Turn this bit ON when you want the monitoring time to
be set automatically (teaching function) when
FPD(269) is executed.
Name Address Operation
T
R
&100
Diagnostic output
Execution
condition
Logic diagnosis block
Logic diagnosis execution condition
The diagnostic output (CIO 020000)
remains OFF because these input
conditions are OFF.
Error-processing
block (optional)

Table of Contents

Related product manuals