EasyManua.ls Logo

Siemens SIPROTEC 7SJ80

Siemens SIPROTEC 7SJ80
562 pages
To Next Page IconTo Next Page
To Next Page IconTo Next Page
To Previous Page IconTo Previous Page
To Previous Page IconTo Previous Page
Loading...
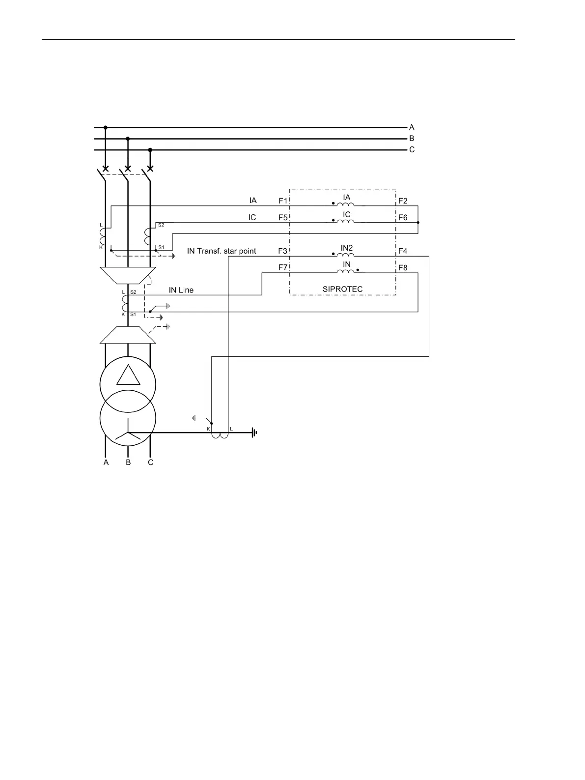
Important! Grounding of the cable shield must be effected at the cable side
For busbar-side grounding of the current transformers, the current polarity of the device is changed via
address 0201. This also reverses the polarity of the current input IN/INs. When using a cable-type current
transformer, the connection of k and I at F8 and F7 must be exchanged.
[7sj80-mess-2erdstroeme-20070301, 1, en_US]
Figure C-12
Current transformer connections to two phase currents and two ground currents; IN/INs –
ground current of the line, IN2 – ground current of the transformer starpoint
Important! Grounding of the cable shield must be effected at the cable side
For busbar-side grounding of the current transformers, the current polarity of the device is changed via
address 0201. This also reverses the polarity of the current input IN/INs. When using a cable-type current
transformer, the connection of k and I at F8 and F7 must be exchanged.
Connection Examples
C.1 Connection Examples for Current and Voltage Transformers
448 SIPROTEC 4, 7SJ80, Manual
E50417-G1140-C343-A8, Edition 12.2017

Table of Contents

Other manuals for Siemens SIPROTEC 7SJ80

Related product manuals