EasyManua.ls Logo

V-TEK TM-500 - Page 222

V-TEK TM-500
254 pages
Print Icon
To Next Page IconTo Next Page
To Next Page IconTo Next Page
To Previous Page IconTo Previous Page
To Previous Page IconTo Previous Page
Loading...
8888113788
3151515141412121
EDIS KCAB
21529211A6 ELOP 2 REKAERB TIUCRIC2
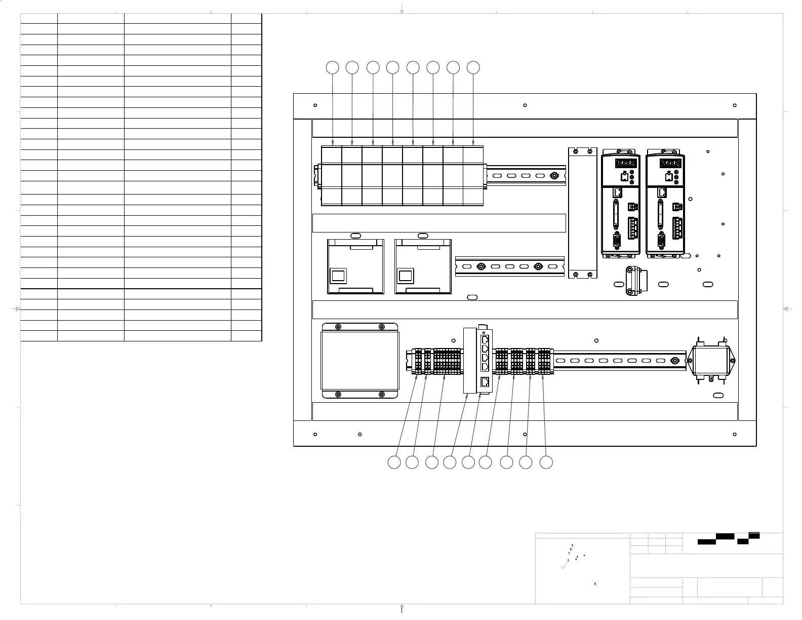
72880072LENAP LACIRTCELE 005-MT1
829800724# LIAR NID1
920900725# LIAR NID1
03190072)TROHS( ESAHC ERIW LATNOZIROH1
.ON METIREBMUN TRAPNOITPIRCSED.YTQ
1609101A03 IFR RETLIF1
2419101611CT-FLXX-0902 RETLIF ENIL BA1
39912010793692 TCATNOC XINEOHP1
4561301PMA VER NIP 91 TPECER1
5085301
V042-4
4-EC XIDOR2
6185301RETLIF TUPNI ENIL REWOP EC1
7751401KCOLB DNUORG LANIMRET9
8851401KCOLB MRET91
9061401PAC DNE MRET11
011285010RP13V-7902 YLDARB NELLA2
11638501TROP 54JR PT 5 HCTIWS TENREHTE1
31829211A51 ELOP 2 REKAERB TIUCRIC1
41039211AN-2/8D-ZAF NOTAE2
51139211AN-2/01D-ZAF NOTAE3
61
HS mm80 x 3M wercS
117122 SS
mm8 x 3M SCHS SS4
71057122mm6 x 4M SCHS SS42
81737322mm6 x 5M SCHB SS91
91047322mm8 x 5M SCHB SS4
02947322mm8 x 6M SCHB SS21
12260832REHSAW SSELNIATS 6M8
22727662ESAHC ERIW LATNOZIROH3
32827662ESAHC ERIW LACITREV2
42927662REVOC RETLIF1
52037662TNUOM ELCATPECER1
623376623# LIAR NID1
YAM TI .LAITNEDIFNOC DNA YRATEIRPORP SI TNEMUCOD SIHT NI NOITAMROFNI EHT
NOISSIMREP SSERPXE EHT TUOHTIW DESU RO ,DETTIMSNART ,DECUDORPER EB TON
.AC ,APAN ,CLL STNEMURTSNI ECYOR RO NM ,OTAKNAM ,.CNI KET-V FO
A
517292
:DEIFICEPS ESIWREHTO SSELNU
23
EMAN
ETAD
.RPPA GNE
NWARD
XXX. 500.0
XX.
010.0
X. 510.0
DENIHCAM :1.0
DNEB 5.0
:
LENAP LACIRTCELE 005-MT
8102/71/9
~OVP
OVP
D
C
B
A
B
C
D
5678
87 6
5
4
32
1
E
F
E
F
5 FO 5 TEEHS71.55 :)sbl( THGIEW
VER
.ON .GWD
EZIS
:ELTIT
C
HSINIF
LAIRETAM
:SETON LARENEG
5.41Y ISNA REP GNICNARELOT CIRTEMOEG TERPRETNI -
DETON SSELNU XAM 010. SEGDE PRAHS LLA KAERB -
510. X 510. SELOH LLA REFMAHC - DETON SSELNU 010.
SESSECORP GNINAELC & ,SGNITAOC ,SLAIRETAM LLA -
TRAP TNAILPMOC SHoR NI TLUSER TSUM
GNIWARD ELACS TON OD -
SEHCNI NI ERA SNOISNEMID
:SECNARELOT
RALUGNA
ECAFRUS

Table of Contents

Related product manuals