EasyManua.ls Logo

Yamaha F50A - Page 71

Yamaha F50A
403 pages
Print Icon
To Next Page IconTo Next Page
To Next Page IconTo Next Page
To Previous Page IconTo Previous Page
To Previous Page IconTo Previous Page
Loading...
62Y3A11
2-28
1
2
3
4
5
6
7
8
I
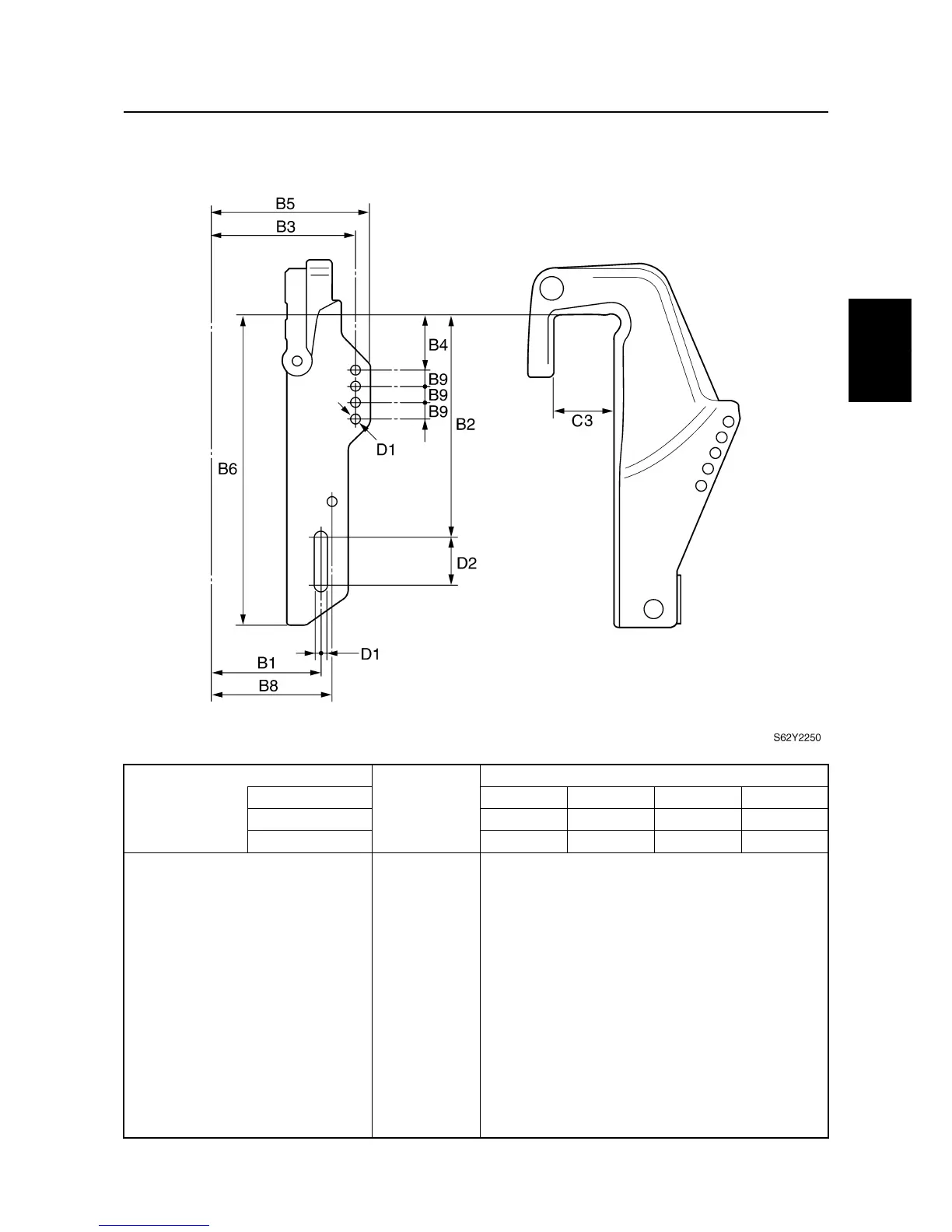
Clamp bracket
Symbol Unit
Model
USA T50TR ———
Canada T50TR ———
Worldwide FT50BET FT50CEHD FT50CED FT50CET
B1 mm (in) 126 (5.0)
B2 mm (in) 254 (10.0)
B3 mm (in) 163.5 (6.4)
B4 mm (in) 50.8 (2.0)
B5 mm (in) 180 (7.1)
B6 mm (in) 355 (14.0)
B7 mm (in)
B8 mm (in) 139 (5.5)
B9 mm (in) 18.5 (0.7)
C2 mm (in)
C3 mm (in) 69 (2.7)
D1 mm (in) 13 (0.5)
D2 mm (in) 55.5 (2.2)
Maintenance specifications

Table of Contents

Other manuals for Yamaha F50A

Related product manuals