EasyManua.ls Logo

YASKAWA yasnac i80m

YASKAWA yasnac i80m
684 pages
To Next Page IconTo Next Page
To Next Page IconTo Next Page
To Previous Page IconTo Previous Page
To Previous Page IconTo Previous Page
Loading...
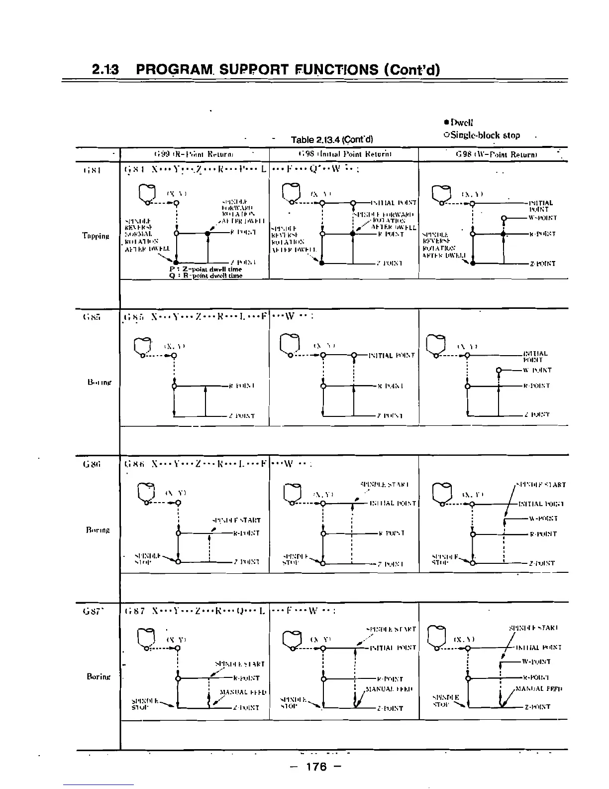
2.13
PROGRAM
SUPPORT
FUNCTIONS
(Cont’d)
Dwell
o
Single-block
stop
Table
2.13.4
(Cont'd)
<‘i9S
ilm1i.il
Point
Return)
<R-
I'tlini
Return
J
G98
(
W-
Point
Return)
\<
-
1
F
L
c
;
x
i
\
TSI
Q.~*
Q
f\
\
)
*I*»::M.P
HihlVAKIi
Kn
|
A
1
1'
»N
,At
N’K
I'Whl
I
-
K
I
HIM
9
IM11AL
I
Ml
N’T
P
t-nkWAKi*
;
...•
Kul
ATIn.N
y
AUF.K
IfWhLL
Y
POINT
INITIAL
I
Ml
NT
W-
POINT
r~
"PIMH.P
KK\
PK-*
tKMAI.
1
1
A1
1'
»S
AP’lP.K
liWI-LL
i
l
"II
Mil
P
ki-vmÿi
KU
I
A1
l<
iN
\PIPK
hWH
I.
<
i
*
Tapping
'Hi'CM.k
kKVfeksp
Ki.iT
A
TIUN
AP’TPK
LiWKI.I
v
/
h
ii.\
i
•>
/
PUINl
Z
POINT
P
1
Z
-point
dwell
lime
Q
«
R
-point
dwell
lime
\
i
Y
X
R
I.
K
VV
:
(
i
»S:i
t
;
s
r.
Q
0-
a..,
tS
i
i\
M
INITIAL
KHNT
W
|
MINT
?
r-
INITIAL
K»INT
l$»>i
ing
K
hU.N
I
K
I
MIN
l
K
POINT
/
POINT
7
pul\l
Z
Pul
NT
Z---K
W
" "
:
(.1
x
n
X
-
Y
G
tfii
00
-ITS
I’LL
>
T
\
K
I
sir.
Ill
V
’*‘1
ART
0.
a
i\
V)
--9
Y>
*9-
l\.
Y
i
A
INI
UAL
KHNT
--9
INITIAL
I
MINI
T
W
-KHNT
•HT\M
K
sTAUT
f
B'lrinji
K-I’i
HNT
K
Pul
NT
R-
IMINT
4
slTNM.P
SIMP
-ITNPI
STMP
sl-INH
K
VTnP
7
1
Til
NT
Z
IMIS’T
7
I
M|N
|
F—
W
K#
(J
I.
V
Z
G87
X
Gt>7"
00
0
00
CU
SI
TNI
'I
P
vTAKI
MINIM
k
>T
\KT
n
-p
a
/
m+
IX.
'i
)
(X
----
Q-
(\
Y)
IMIIAL
KMINT
I
NIT
IAI
KHNT
*
t
i
W-
Pul
NT
SPIMH
h
*
I
APT
f
j
Boring
-k
-POINT
k
Pul
NT
-
K
POINT
MANUAL
l-
Phi
i
MANUAL
FEFI
1/
MANUAL
PPPL*
!/
-
M'lxm
P:
splNM
h
VI
OP
Sl'ISfM
h
SI
uP
STOP
>sÿ
ZKHNT
l
I
MINT
Z
I
Ml
NT
176
-

Table of Contents

Related product manuals