EasyManua.ls Logo

ABB XFCG4 6413 - Installation

ABB XFCG4 6413
161 pages
Print Icon
To Next Page IconTo Next Page
To Next Page IconTo Next Page
To Previous Page IconTo Previous Page
To Previous Page IconTo Previous Page
Loading...
46 XFC G4 2103335 Rev AB
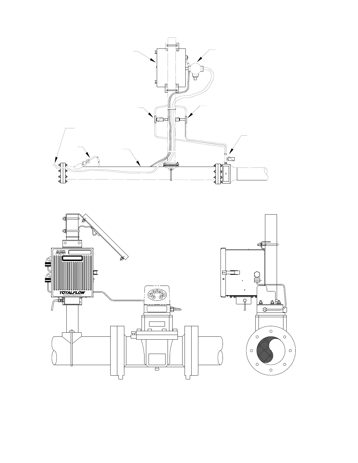
Figure 25 Typical Pipe Installation for Gas Orifice
Figure 26 Typical Pipe Installation for Pulse Meter
High Input (H)
XFC
AC Adapter
Low Input (L)
Orifice Fitting
RTD
Probe
Meter Run
To Customer Supplied
AC Power Source
G4
FC 6411X

Table of Contents

Related product manuals