EasyManua.ls Logo

ABB XFCG4 6413 - Figure 40 Model XFC 6411 Wall Mounted; G4 6411 Wall Mounted

ABB XFCG4 6413
161 pages
Print Icon
To Next Page IconTo Next Page
To Next Page IconTo Next Page
To Previous Page IconTo Previous Page
To Previous Page IconTo Previous Page
Loading...
58 XFC G4 2103335 Rev AB
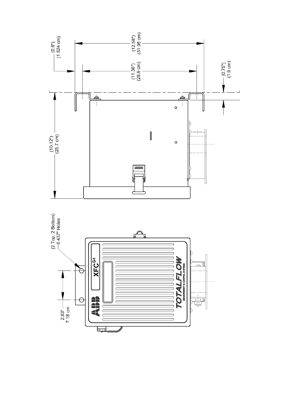
Figure 40 Model XFC
G4
6411 Wall Mounted

Table of Contents

Related product manuals