EasyManua.ls Logo

Buell 2002 P3 - Page 25

Buell 2002 P3
400 pages
Print Icon
To Next Page IconTo Next Page
To Next Page IconTo Next Page
To Previous Page IconTo Previous Page
To Previous Page IconTo Previous Page
Loading...
B-8 Appendix B: Wiring
HOME
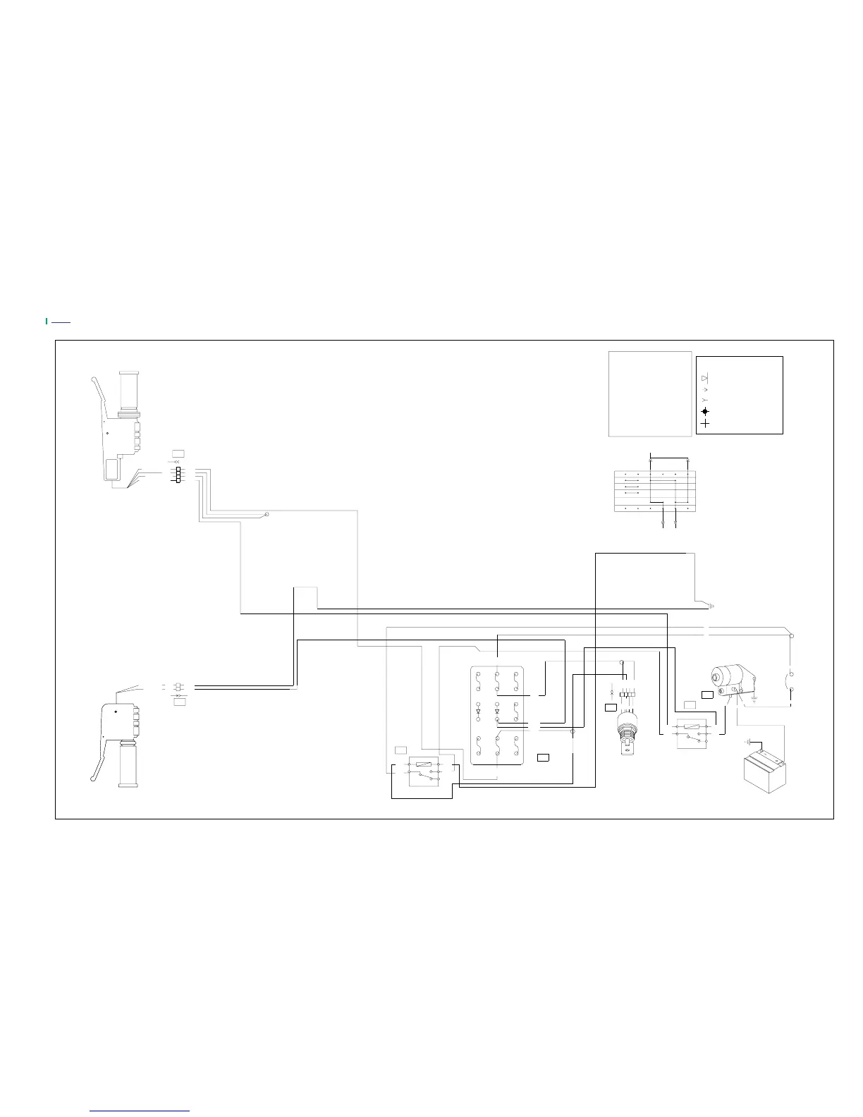
Figure B-11. 2001 Buell Blast P3 Model - Starting
R 1
R/BK1
R/BK
GY
22
GY
FROM (3)
W/BK
W/BK
W/R
GN/BK
R 2
R
R 1
R 1
R/BK
R 2
R 2
R
R/BK
BK
S11
TN/GN
TN/GN
BE
IGN POWER
R
RR
R
BK
GN
GN
TN/GN
BK/R
R/B 1
RELAY
TO START
TN/GN
BK
Y/R BK/R
BE
IGN POWER
171
GY
33
K/BGN
D
C
Y
R
B
A
KEY SWITCH
7.5A
7.5A
7.5A
15A
ACCESSORY
SPARE
IGNITION
15A
SPARE
DIODE 2
DIODE 1
15A
SYSTEM
KEY SWITCH
15A
LIGHTS
61
(TOP VIEW)
BLOCK
FUSE
RELAY
SYSTEM
87A
87
85
30
86
4
3
2
1
CLUTCH SWITCH
95
16 Y
16 GY
16 R 2
18 O/W16 R/BK
ZADI KEY SWITCH
12A RATING
16 GN/B
6A RATING
6A RATING
16 R
BC
DA
FEDCBA
ON
OFF
PARK
LOCK
FEDCBA
KEY SWITCH LOGIC
(TO BATT NEG)
MAIN CHASSIS GROUND
4
3
2
1
MASTER C/B
123
START
RELAY
87A
87
85
30
86
30A
128
START RELAY
FROM
TO GND
BATTERY
R/BE
BK
2
1
COLOR CODE:
BE BLUE
BK BLACK
BN BROWN
GN GREEN
GY GRAY
O ORANGE
PK PINK
R RED
TN TAN
V VIOLET
W WHITE
Y YELLOW
LT. LIGHT
DIODE
NO CONNECTION
PIN CONNECTOR
SOCKET CONNECTOR
SPLICE CONNECTION
CONNECTOR CODE:
a0194x5x

Table of Contents

Related product manuals