EasyManua.ls Logo

Garmin G3X - Page 134

Garmin G3X
1011 pages
Print Icon
To Next Page IconTo Next Page
To Next Page IconTo Next Page
To Previous Page IconTo Previous Page
To Previous Page IconTo Previous Page
Loading...
190-01115-01 G3X™/G3X Touch™ Avionics Installation Manual
Rev. AV Page 12-8
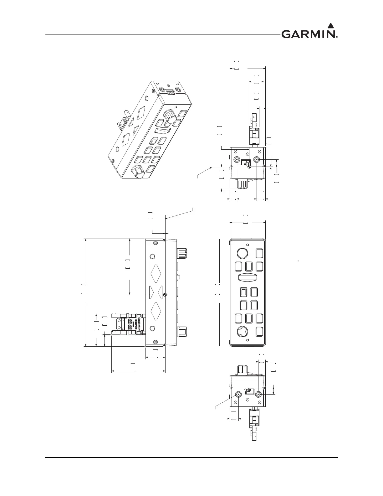
Figure 12-7 GMC 507 Outline Drawing with Installation Rack
C.G. (NOTE 3)
0.5.02
3.28
83.3
C.G. (NOTE 3)
.02 0.5
C.G. (NOTE 3)
1.15 29.1
C.G. (NOTE 3)
1.27 32.3
FRONT SURFACE OF
AIRCRAFT PANEL
NOTES:
DIMENSIONS: INCHES[mm]. METRIC VALUES ARE FOR REFERENCE ONLY.1.
DIMENSIONS ARE NOMINAL AND TOLERANCES ARE NOT IMPLIED UNLESS SPECIFICALLY STATED.2.
CENTER OF GRAVITY (C.G.) LOCATION IS WITHOUT CONNECTOR KIT INSTALLED.3.
MOUTING HOLES ARE FOR #6 FLAT HEAD 100 CSK SCREWS (4 PLACES)4.
3.14
79.7
.69
17.6
48.5
1.91
1.15 29.2
6.30 160.0
RACK
2X .437 11.1
.515 13.1
.415 10.5
NOTE 4
.515 13.1
11.1
22.1.87
RACK
53.1
(NOT INCLUDING DIMPLES)
6.7
2X .437
2.09
.26
.415
10.5
158.8
BEZEL
6.25
2.10
53.3
BEZEL

Table of Contents

Other manuals for Garmin G3X

Related product manuals