EasyManua.ls Logo

Huawei NetCol8000-A045D - Page 31

Huawei NetCol8000-A045D
369 pages
Print Icon
To Next Page IconTo Next Page
To Next Page IconTo Next Page
To Previous Page IconTo Previous Page
To Previous Page IconTo Previous Page
Loading...
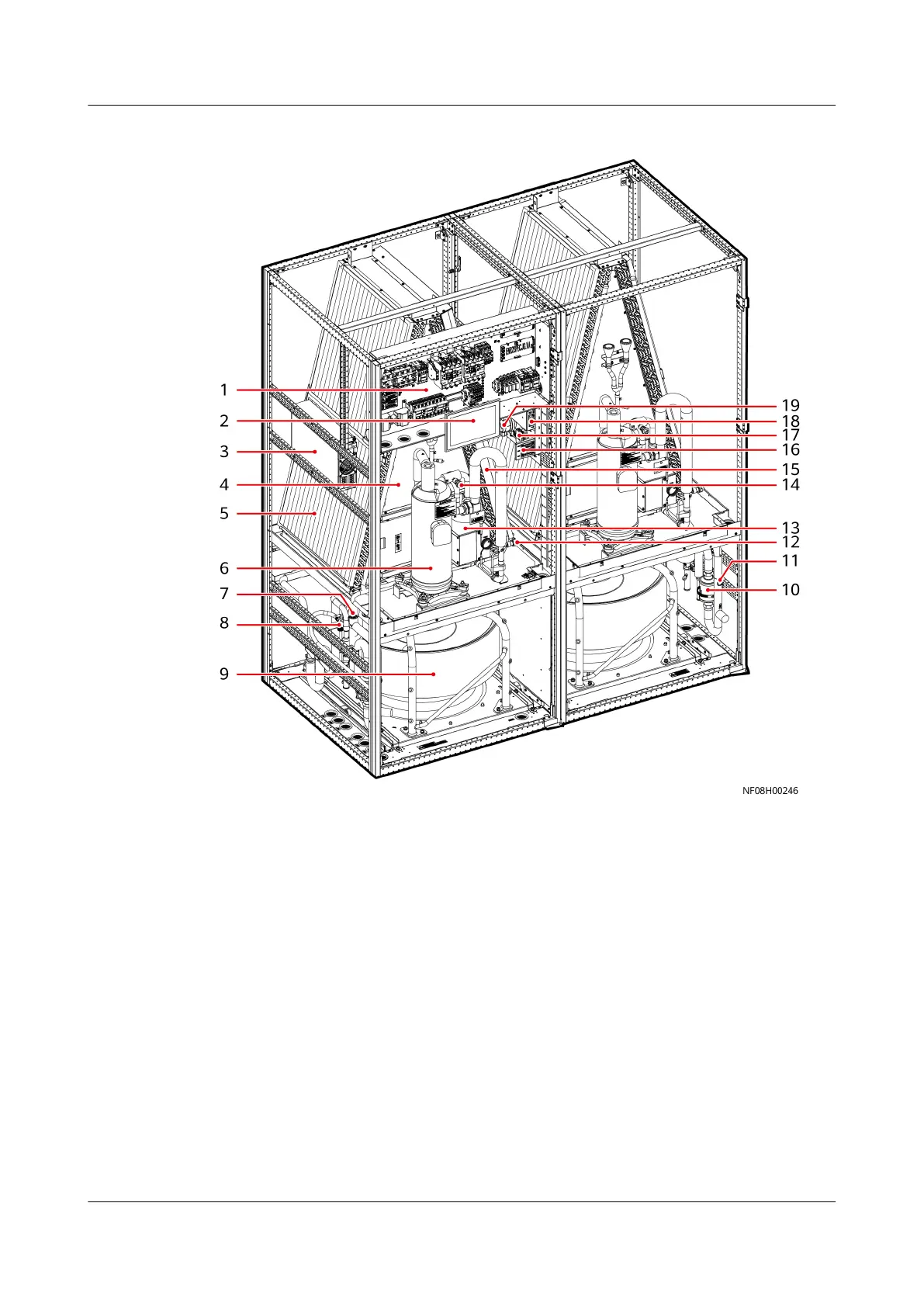
Figure 2-11 NetCol8000-A090D components
(1) Electric control box (2) Display module (3) Integrated
variable-frequency
drive
(4) Evaporator
(5) Air lter (6) Compressor (7) EEV (8) Water inlet
solenoid valve
(optional)
(9) Fan (10) Filter dryer (11) Sight glass (12) Suction pressure
sensor
(13) Oil separator (14) Discharge
pressure sensor
(15) Wet lm
humidier (optional)
(16) User wiring
terminal
(17) Wet lm
humidier
(18) Main control
module
(19) Dierential
pressure switch
NetCol8000-A(045, 055, 060, 090, 120) In-room Air
Cooled Smart Cooling Product
User Manual 2 Product Description
Issue 05 (2020-10-10) Copyright © Huawei Technologies Co., Ltd. 21

Table of Contents

Other manuals for Huawei NetCol8000-A045D

Related product manuals