EasyManua.ls Logo

Lenovo ThinkSystem SR650 V2 - Page 107

Lenovo ThinkSystem SR650 V2
442 pages
To Next Page IconTo Next Page
To Next Page IconTo Next Page
To Previous Page IconTo Previous Page
To Previous Page IconTo Previous Page
Loading...
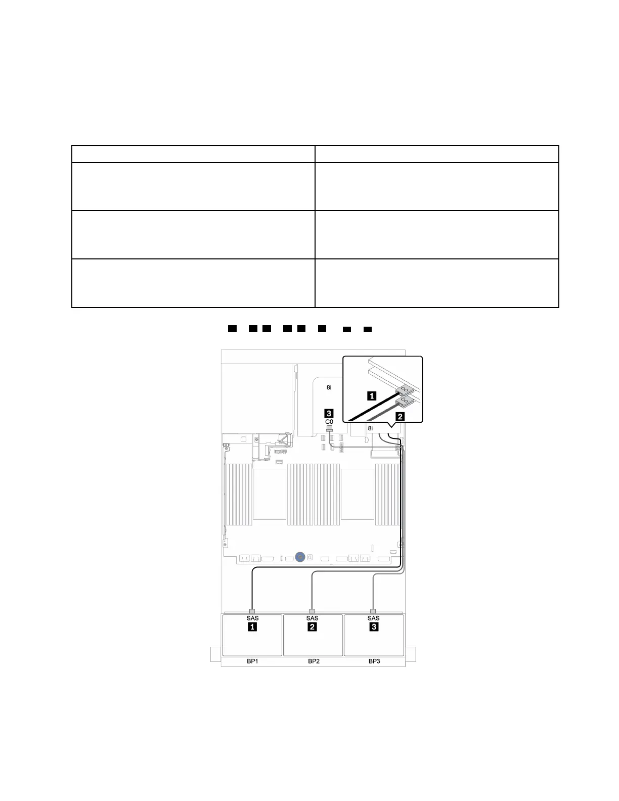
8i RAID/HBA adapters
Front backplanes: 24 x 2.5-inch SAS/SATA
The following shows the cable connections for the 24 x 2.5-inch SAS/SATA configuration with three 8i RAID/
HBA adapters.
From To
Backplane 1: SAS 8i RAID/HBA adapter on PCIe slot 2:
Gen 3: C0C1
Gen 4: C0
Backplane 2: SAS 8i RAID/HBA adapter on PCIe slot 3:
Gen 3: C0C1
Gen 4: C0
Backplane 3: SAS 8i RAID/HBA adapter on PCIe slot 5:
Gen 3: C0C1
Gen 4: C0
Connections between connectors:
1 1 , 2 2 , 3 3 , ... n n
Figure 41. Cable routing for the 24 x 2.5-inch SAS/SATA configuration with three 8i RAID/HBA adapters
Chapter 3. Internal cable routing 97

Table of Contents

Other manuals for Lenovo ThinkSystem SR650 V2

Related product manuals