EasyManua.ls Logo

Lenovo ThinkSystem SR650 V2 - Page 169

Lenovo ThinkSystem SR650 V2
442 pages
To Next Page IconTo Next Page
To Next Page IconTo Next Page
To Previous Page IconTo Previous Page
To Previous Page IconTo Previous Page
Loading...
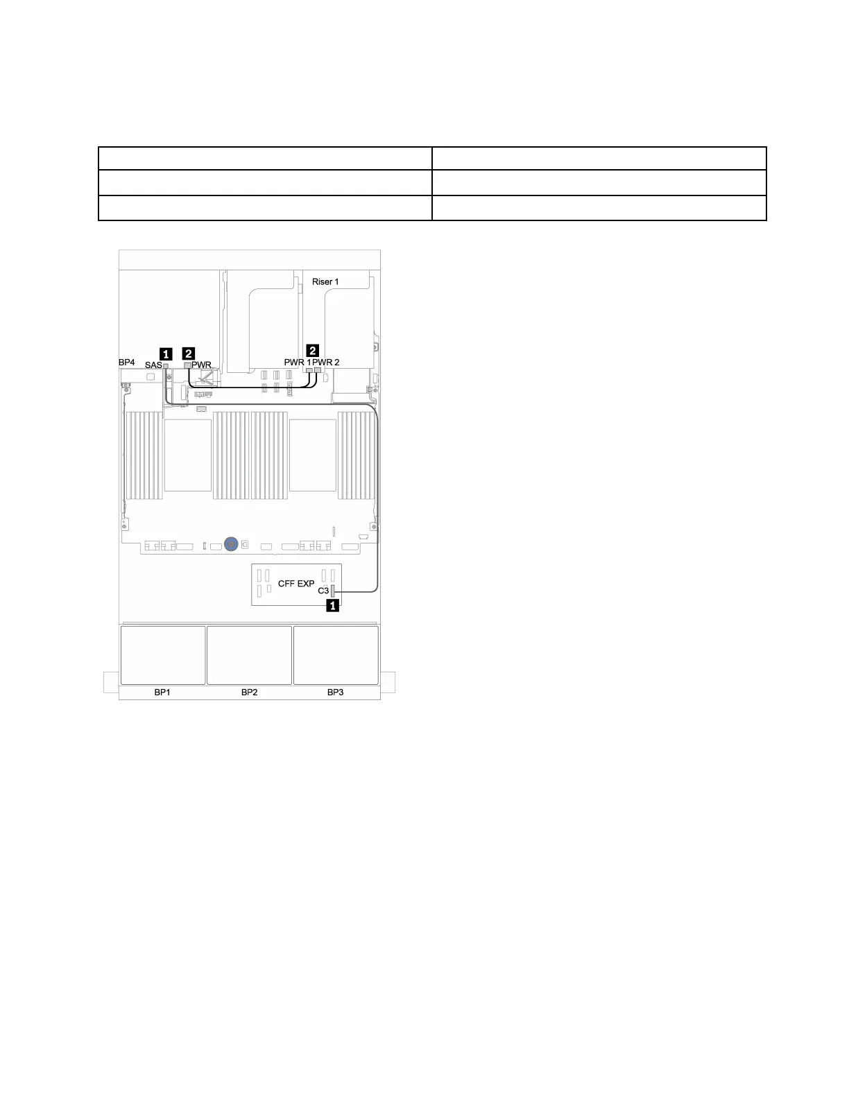
Rear backplane: 4 x 2.5-inch SAS/SATA
The following shows the cable connections for a rear 4 x 2.5-inch SAS/SATA backplane if installed.
From To
Backplane 4: SAS CFF expander: C3
Backplane 4: PWR Riser 1: PWR1, PWR2
Figure 115. Cable routing for the rear 4 x 2.5-inch SAS/SATA backplane
Chapter 3. Internal cable routing 159

Table of Contents

Other manuals for Lenovo ThinkSystem SR650 V2

Related product manuals