EasyManua.ls Logo

Lenze 8200 - Page 103

Lenze 8200
313 pages
Print Icon
To Next Page IconTo Next Page
To Next Page IconTo Next Page
To Previous Page IconTo Previous Page
To Previous Page IconTo Previous Page
Loading...
Installation
8200SHB0199
4-45
Lx
U
V
W
M
3~
PE
RB1 RB2
+UG
-UG
RB
Mains
PE
82XX
K10
Z3
Z2
PE
PE
Z1
PE
PE
789
GND 1
GND 2
PE
Vref
Vcc
-UG
+UG
F1
-X1
n
n
n
n
n
K1
62
K11
K12 K14
20
28
E1
E2
E3
E4 39
PES
PES
PES
PES
PES
PES
PES
PES
PES
PES
PES
PE
PE
PES
PE
K35.0082gb
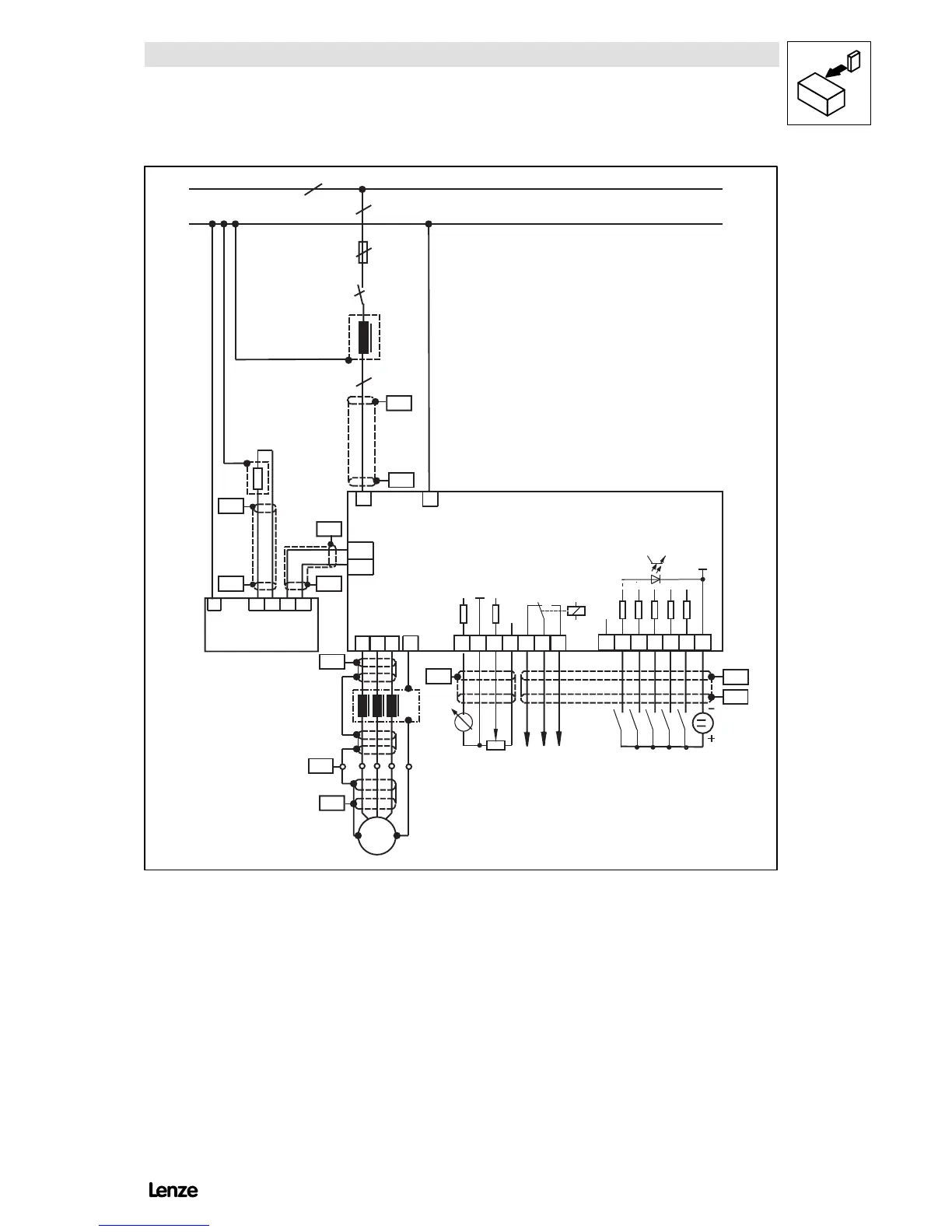
FIG 4-28 Example for an installation in accordance with the EMC regulations:
F1 Fuse
K10 Mains contactor
Z1 Mains filter ”A or B”, see Accessories
Z2 Motor filter/sine filter, see Accessories
Z3 Brake module/brake chopper, see Accessories
-X1 Terminal strip in control cabinet
RB Brake resistor
PES HF screen because auf PE connection with a surface as large as possible (see ”Screening” in this
chapter)
n Number of phases
Artisan Technology Group - Quality Instrumentation ... Guaranteed | (888) 88-SOURCE | www.artisantg.com

Table of Contents

Other manuals for Lenze 8200

Related product manuals