EasyManua.ls Logo

Lenze 8200 - Types 8241 to 8246

Lenze 8200
313 pages
Print Icon
To Next Page IconTo Next Page
To Next Page IconTo Next Page
To Previous Page IconTo Previous Page
To Previous Page IconTo Previous Page
Loading...
Installation
8200SHB0199
4-13
4.1.4.3 Types 8241 to 8246
c
b
d
e
g
Lenze
c
a
1
d1
d1
f
b1
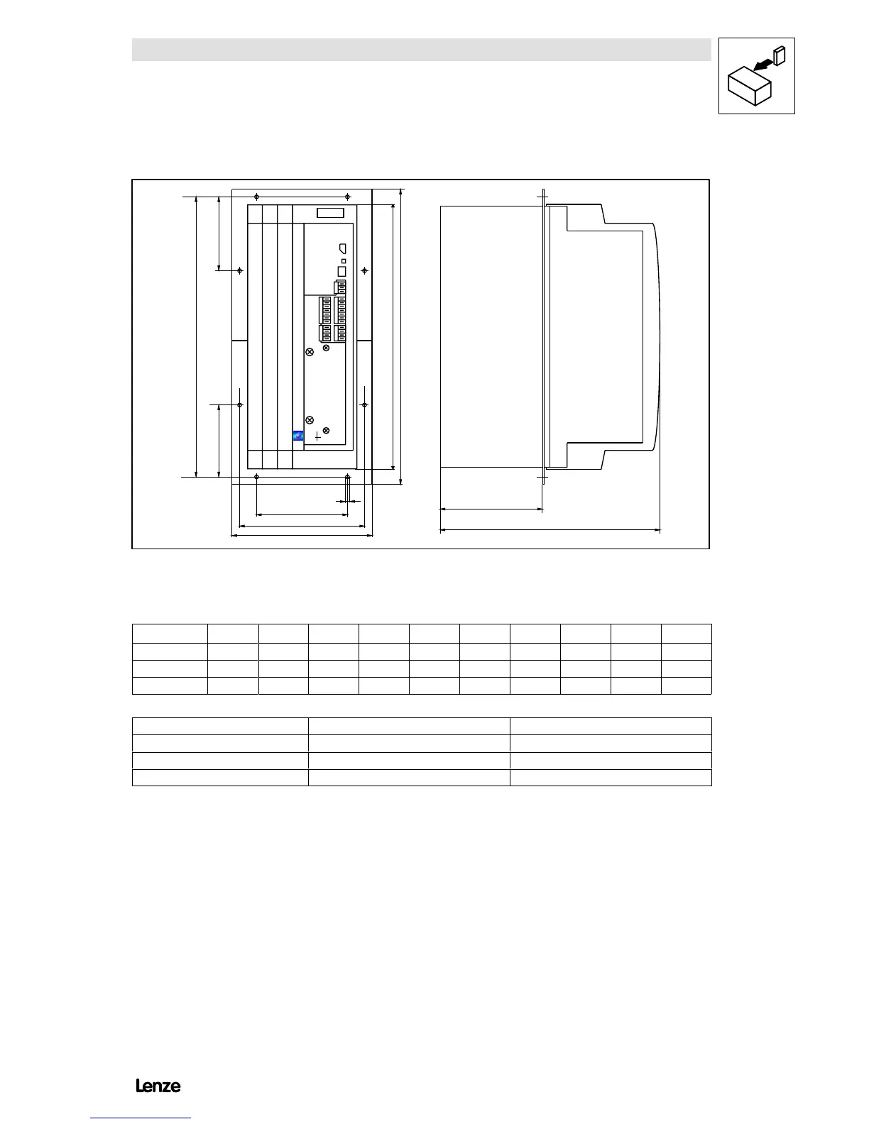
FIG 4-10 Dimensions 8241 - 8246: Assembly with thermally separated power stage
3)
With attachable fieldbus or I/O module:
Observe assembly depth and assembly space required for connection cables
[mm] a b b1 c c1 d d1 e
3)
f g
8241 / 8242 112.5 385.5 350 60 95.5 365.5 105.5 250 92 6.5
8243 / 8244 131.5 385.5 350 79 114.5 365.5 105.5 250 92 6.5
8245 / 8246 135 385.5 350 117 137.5 365.5 105.5 250 92 6.5
Assembly cut-out [mm] Height Width
8241 / 8242 350 3 82 3
8243 / 8244 350 3 101 3
8245 / 8246 350 3 139 3
Artisan Technology Group - Quality Instrumentation ... Guaranteed | (888) 88-SOURCE | www.artisantg.com

Table of Contents

Other manuals for Lenze 8200

Related product manuals