EasyManua.ls Logo

REXROTH EcoDrive Cs - Page 210

REXROTH EcoDrive Cs
230 pages
Print Icon
To Next Page IconTo Next Page
To Next Page IconTo Next Page
To Previous Page IconTo Previous Page
To Previous Page IconTo Previous Page
Loading...
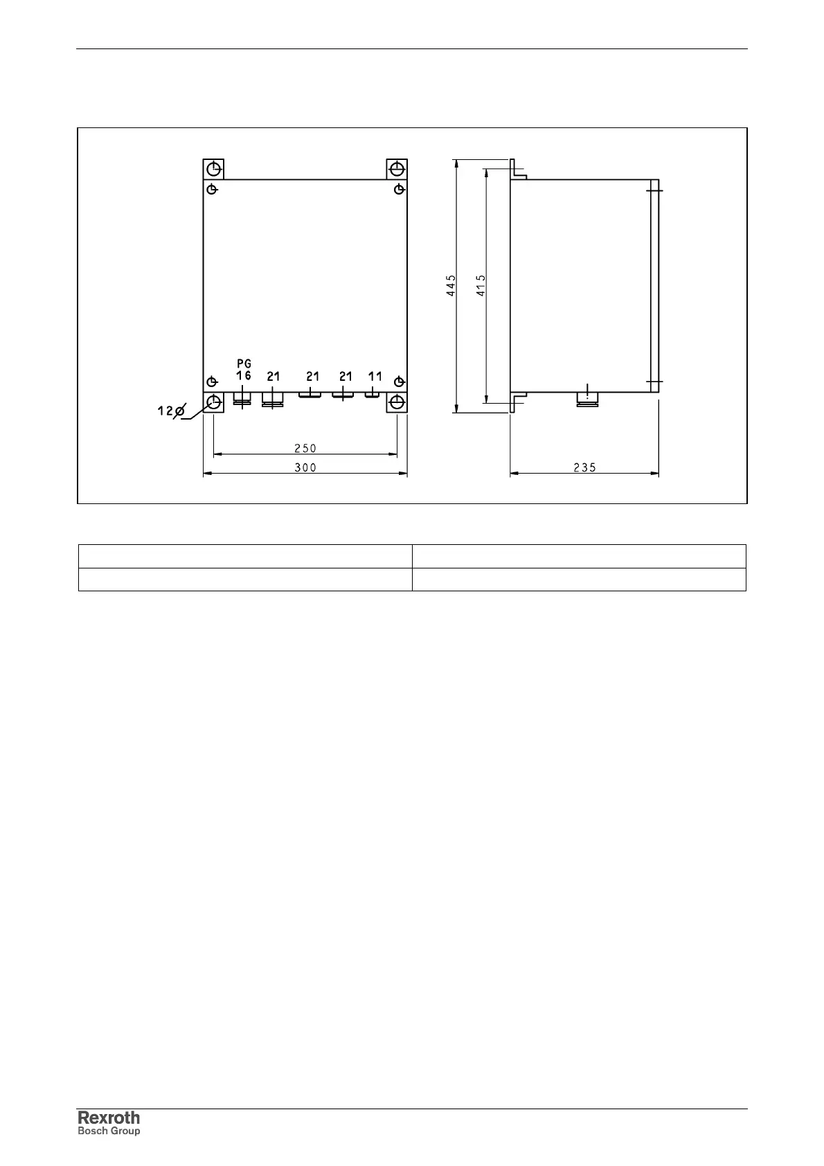
10-36 Additional Components Rexroth EcoDrive Cs Drives
DOK-ECODR3-DKC**.3-CS*-PR02-EN-P
DST 2,5/G/400,480,500,525-230-IP
Fig. 10-53: Dimensions
weight 31 kg
terminal 4 mm
2
Fig. 10-54: Data
Courtesy of CMA/Flodyne/Hydradyne Motion Control Hydraulic Pneumatic Electrical Mechanical (800) 426-5480 www.cmafh.com

Table of Contents