EasyManua.ls Logo

REXROTH EcoDrive Cs - Nfd03.1

REXROTH EcoDrive Cs
230 pages
Print Icon
To Next Page IconTo Next Page
To Next Page IconTo Next Page
To Previous Page IconTo Previous Page
To Previous Page IconTo Previous Page
Loading...
10-40 Additional Components Rexroth EcoDrive Cs Drives
DOK-ECODR3-DKC**.3-CS*-PR02-EN-P
NFD03.1
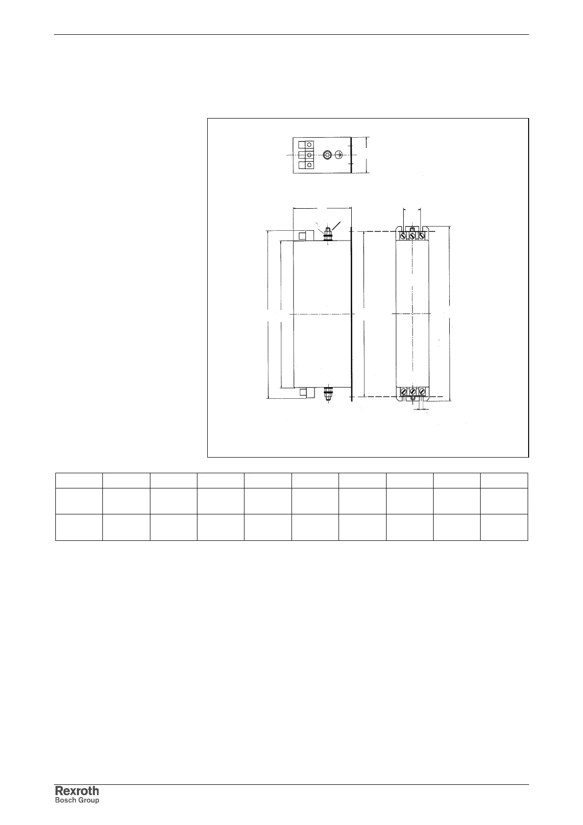
Dimensions
K
B
M
C
F
G
D
LINE
LOAD
E
A
ABCDEFGKM
NFD03.1-
480-007
190 90 50 160 180 20 5,4 190 M5
NFD03.1-
480-016
250 90 55 220 235 25 5,4 250 M5
Fig. 10-59: Dimensions
Courtesy of CMA/Flodyne/Hydradyne Motion Control Hydraulic Pneumatic Electrical Mechanical (800) 426-5480 www.cmafh.com

Table of Contents