EasyManua.ls Logo

REXROTH EcoDrive Cs - Nfe02.1

REXROTH EcoDrive Cs
230 pages
Print Icon
To Next Page IconTo Next Page
To Next Page IconTo Next Page
To Previous Page IconTo Previous Page
To Previous Page IconTo Previous Page
Loading...
Rexroth EcoDrive Cs Drives Additional Components 10-39
DOK-ECODR3-DKC**.3-CS*-PR02-EN-P
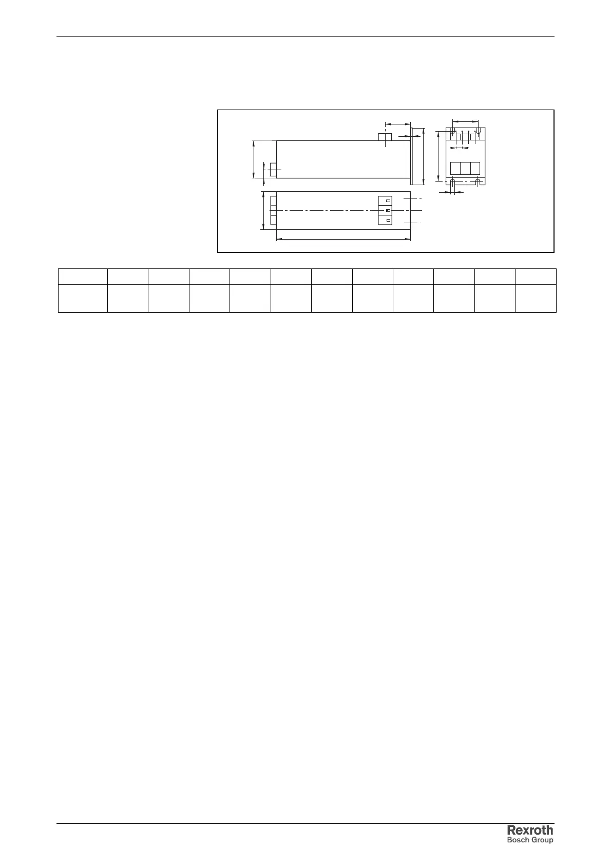
NFE02.1
Dimensions
MB5054F1.FH7
F
M
H
J
A
E
G
B
D
L
C
LINE /
NETZ
LOAD /
LAST
LINE
LOAD
ABCDEFGHJLM
NFE02.1-
230-008
90 210 60 60 80 40 5,3 40 0,75 15 10
Fig. 10-58: Dimensions
Courtesy of CMA/Flodyne/Hydradyne Motion Control Hydraulic Pneumatic Electrical Mechanical (800) 426-5480 www.cmafh.com

Table of Contents