EasyManua.ls Logo

REXROTH SYNAX200 - Mounting Dimensions Module Carrier RMB02.2-04

REXROTH SYNAX200
168 pages
Print Icon
To Next Page IconTo Next Page
To Next Page IconTo Next Page
To Previous Page IconTo Previous Page
To Previous Page IconTo Previous Page
Loading...
11-2 Appendix SYNAX200
DOK-SYNAX*-SY*-07VRS**-PR01-EN-P
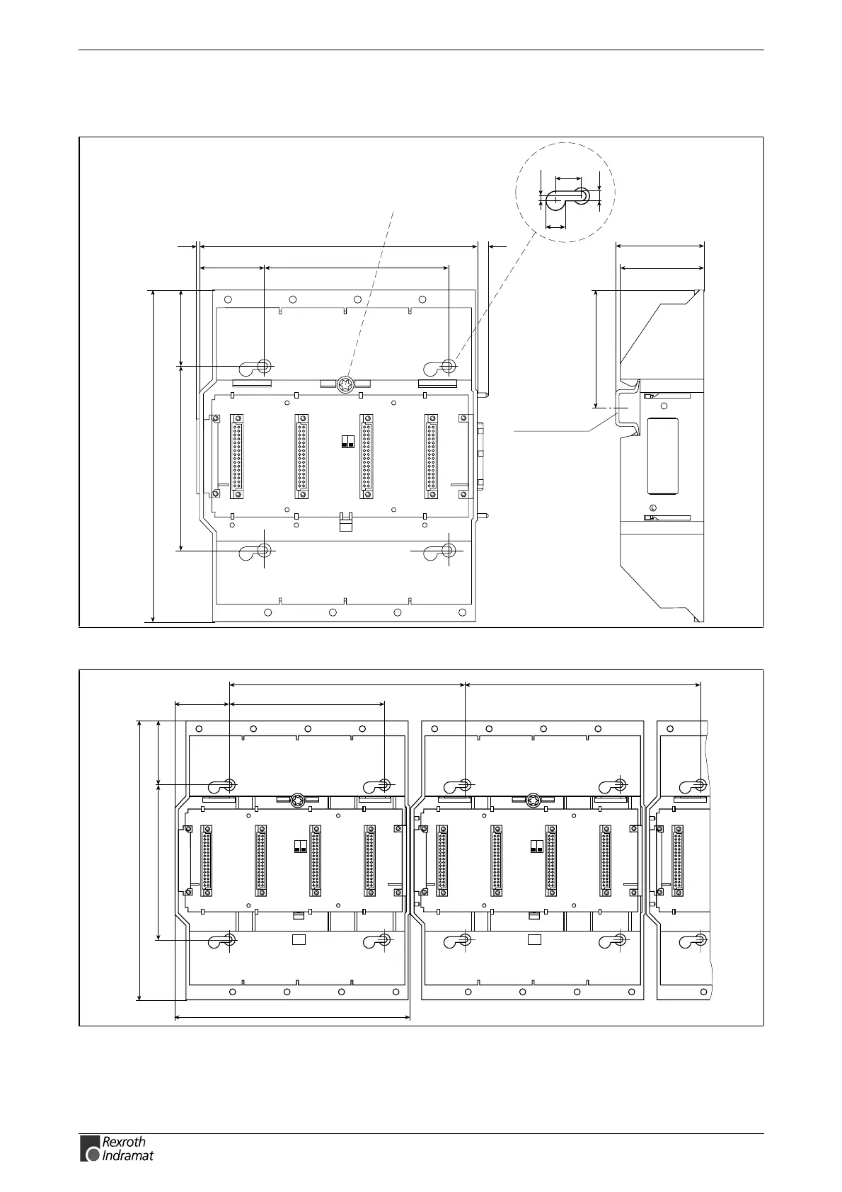
Mounting Dimensions Module Carrier RMB02.2-04
S1
182
42 121
217
120
47
77
Tophat rail
TS 35 x 27 x15
54,5
56
2 7
9
12
4,5
2,25
Screw for locking
the subrack on the
tophat rail
Fig. 11-2: Module carrier RMB02.2-04
42
182
121
182
47120
217
182
S1 S1
Fig. 11-3: Side-by-side installation of several RMB02.2-04 module carrier

Table of Contents

Related product manuals