EasyManua.ls Logo

REXROTH SYNAX200 - Output Module Pin Assignments and Specifications

REXROTH SYNAX200
168 pages
Print Icon
To Next Page IconTo Next Page
To Next Page IconTo Next Page
To Previous Page IconTo Previous Page
To Previous Page IconTo Previous Page
Loading...
11-14 Appendix SYNAX200
DOK-SYNAX*-SY*-07VRS**-PR01-EN-P
RMA02.2-16-DC024-200 Output Module
Brief Description
The digital 24VDC output modules are designed for the connection of
digital actuators, such as solenoid valves, contactors, or indicator lights.
The 16 outputs are FET transitor switches (active 1 switching) that are
arranged in 2 isolated groups of 8 outputs each. Each 24V output can
source loads up to 2 A.
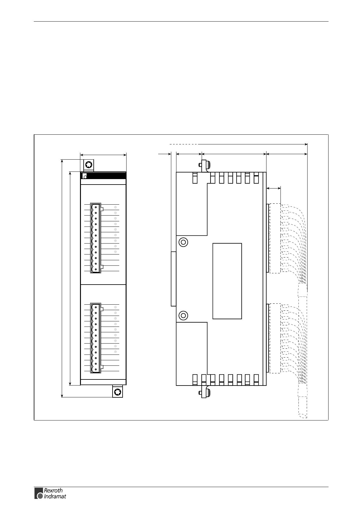
Mounting Dimensions
41,3
192
214
57,54,3
12
3623,5
total installation depth incl. base rack ca. 150
RMA02.2-16-DC024-
1
2
3
4
5
6
7
8
9
1
1
1
1
2
3
4
5
6
7
8
9
1
1
1
X2
Q*.0.0
Q*.0.1
Q*.0.2
Q*.0.3
Q*.0.4
Q*.0.5
Q*.0.6
Q*.0.7
0V
0V
+U
+U
X
Q*.1.0
Q*.1.1
Q*.1.2
Q*.1.3
Q*.1.4
Q*.1.5
Q*.1.6
Q*.1.7
0V
0V
+U
+U
RMA02.2-16-DC024-200_Maß.FH7
Fig. 11-16: Mounting dimensions RMA02.2-16-DC024-200

Table of Contents

Related product manuals