EasyManua.ls Logo

REXROTH SYNAX200 - Page 133

REXROTH SYNAX200
168 pages
Print Icon
To Next Page IconTo Next Page
To Next Page IconTo Next Page
To Previous Page IconTo Previous Page
To Previous Page IconTo Previous Page
Loading...
SYNAX200 Appendix 11-13
DOK-SYNAX*-SY*-07VRS**-PR01-EN-P
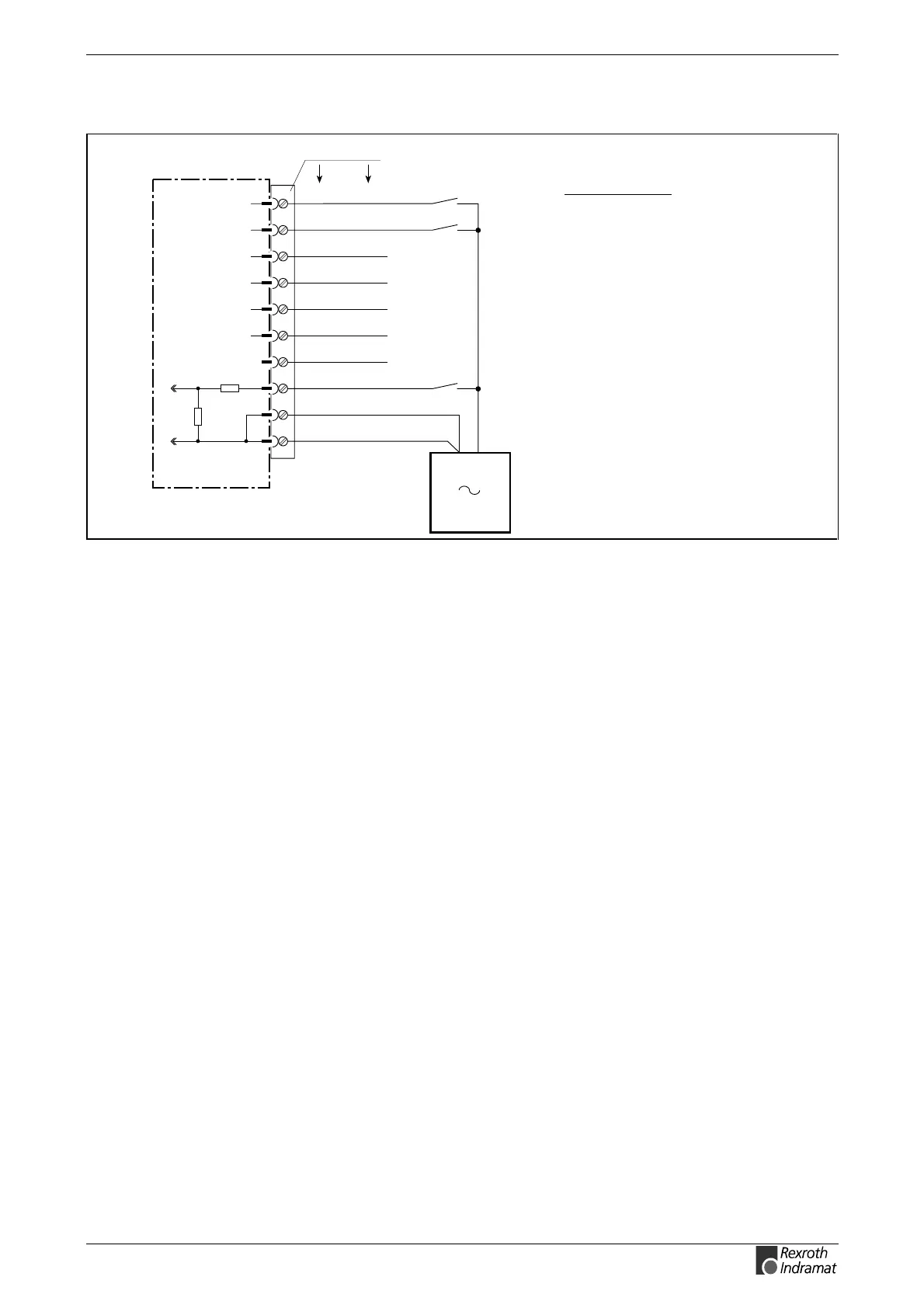
Pin Assignments
1
2
3
4
5
6
7
8
9
10
R
ME02.2-16-AC115
COM
COM
GND
Z
E
I*.0.0
I*.0.1
I*.0.2
I*.0.3
I*.0.4
I*.0.5
I*.0.6
I*.0.7
I*.1.1
I*.1.2
I*.1.3
I*.1.4
I*.1.5
I*.1.6
I*.1.7
I*.1.0
Specifications:
- Low: < 35V AC
- High: 85 ... 138V AC
- Input current I
E
High < 15mA
- Power loss Pv ca. 3W
- Weight ca. 300g
115VAC
NL1
RME02.2-16-AC115_Anschl.FH7
X1 X2
Fig. 11-15: Wiring diagram RME02.2-16-AC115

Table of Contents

Related product manuals