EasyManua.ls Logo

REXROTH SYNAX200 - PPC-R01.2 and PPC-R02.2 Dimensions

REXROTH SYNAX200
168 pages
Print Icon
To Next Page IconTo Next Page
To Next Page IconTo Next Page
To Previous Page IconTo Previous Page
To Previous Page IconTo Previous Page
Loading...
SYNAX200 Appendix 11-3
DOK-SYNAX*-SY*-07VRS**-PR01-EN-P
PPC-R01.2 and PPC-R02.2
PPC-R02.2PPC-R01.2
22 126,5
165
41,5 83,7
4,5
192
214
11
RECO
8888
PPC-R01.2
H1
PROG
U2
X10
X1
I1
I3
I2
Q1
Q2
24V
e
0V
e
Bb
Bb
24V
0V
S1
RX
TX
U1
RESET
S2
H2
DIST
PPC-R02.2
H1
PROG
U2
X10
X1
Q1
Q2
24V
e
0V
e
Bb
Bb
24V
0V
S1
RX
TX
U1
RESET
S2
H2
DIST
COM
X16
U3 U4
8888
I1
I3
I2
RECO
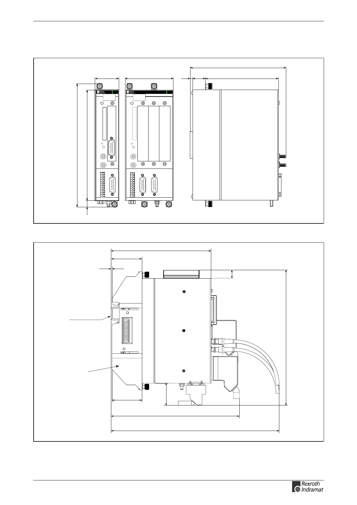
Bemaßung.FH7
Fig. 11-4: Dimensioanl sheet PPC-R01.2 and PPC-R02.2
ca. 235
ca. 300
56,5
2
247,55
40,55
54,5
1515
ca. 183
RMB
Mounting rail
TS 35 x 27 x 15
Bemaßung_Einbau.FH7
Fig. 11-5: Mouting dimensions PPC-R01.2 and PPC-R02.2

Table of Contents

Related product manuals