EasyManua.ls Logo

REXROTH SYNAX200 - Input Module Pin Assignments and Specifications

REXROTH SYNAX200
168 pages
Print Icon
To Next Page IconTo Next Page
To Next Page IconTo Next Page
To Previous Page IconTo Previous Page
To Previous Page IconTo Previous Page
Loading...
11-8 Appendix SYNAX200
DOK-SYNAX*-SY*-07VRS**-PR01-EN-P
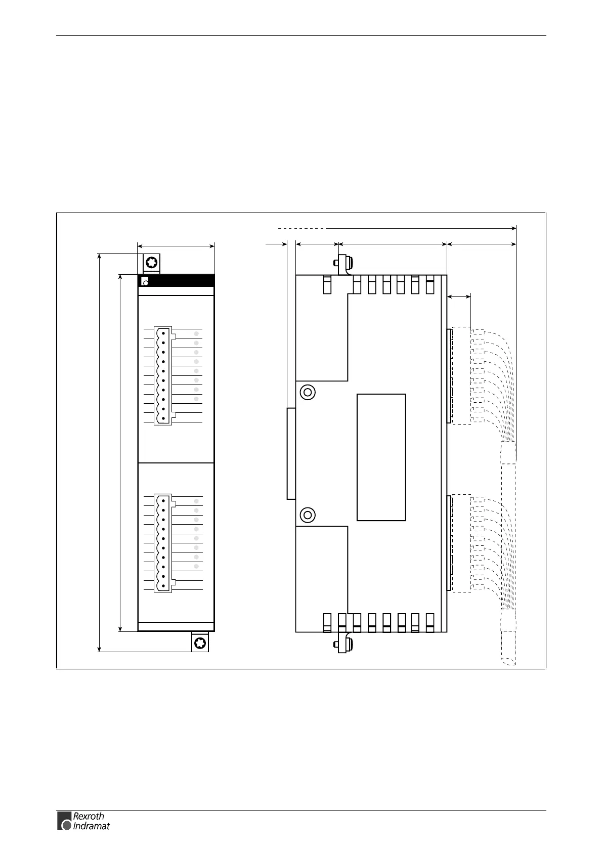
RME02.2-16-DC024 Input Module
Brief Description
The digital 24 VDC input modules are designed for connecting digital
control signals that are produced by pushbuttons, limit switches or
electronic proximity switches. The 16 inputs are arranged in 2 isolated
potential groups.
Mounting Dimensions
41,3
192
214
57,54,3
12
3623,5
total installation depth incl. base rack ca. 150
RME02.2-16-
X
X
I
*.1.0
1
2
3
4
5
6
7
8
9
0V
1
0V
I
*.0.0
1
2
3
4
5
6
7
8
9
0V
1
0V
I
*.1.1
I
*.1.2
I
*.1.3
I
*.1.4
I
*.1.5
I
*.1.6
I
*.1.7
I
*.0.1
I
*.0.2
I
*.0.3
I
*.0.4
I
*.0.5
I
*.0.6
I
*.0.7
RME02.2-16-DC024_Maß.FH7
Fig. 11-10: Mounting dimensions RME02.2-16-DC024

Table of Contents

Related product manuals