EasyManua.ls Logo

Texecom Premier Elite Series

Texecom Premier Elite Series
152 pages
To Next Page IconTo Next Page
To Next Page IconTo Next Page
To Previous Page IconTo Previous Page
To Previous Page IconTo Previous Page
Loading...
Premier Elite Series Installation Manual Installation
INS176-15 9
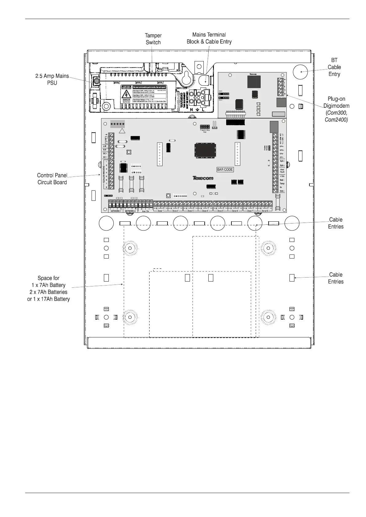
Control Panel Layout Metal All Models (168 shown)
Com 2
F1
F5
JP7
Aux 12v
1Amp
Network 2
1Amp
Com 1
Heartbeat
Load
Defaults Expansion
F3
Network 1
1Amp
Kick
Start
Tx1
Rx1
Tx2
Rx2
Box
Tamp
100mV = 1Amp
V
F6
F2
F8
F7
F9
!
USE WITH
TEXECOM PSU
ONLY
F4
Eng Keypad
Bell/Strb - 1Amp
JP10

Table of Contents

Other manuals for Texecom Premier Elite Series

Related product manuals