EasyManua.ls Logo

Wallace Perimeter Security ALPHA - Installing the Target Magnet

Default Icon
182 pages
Print Icon
To Next Page IconTo Next Page
To Next Page IconTo Next Page
To Previous Page IconTo Previous Page
To Previous Page IconTo Previous Page
Loading...
66
wallaceperimetersecurity.comPhone: 866.300.1110
INSTALLING THE TARGET MAGNET
Installing the Target Magnet
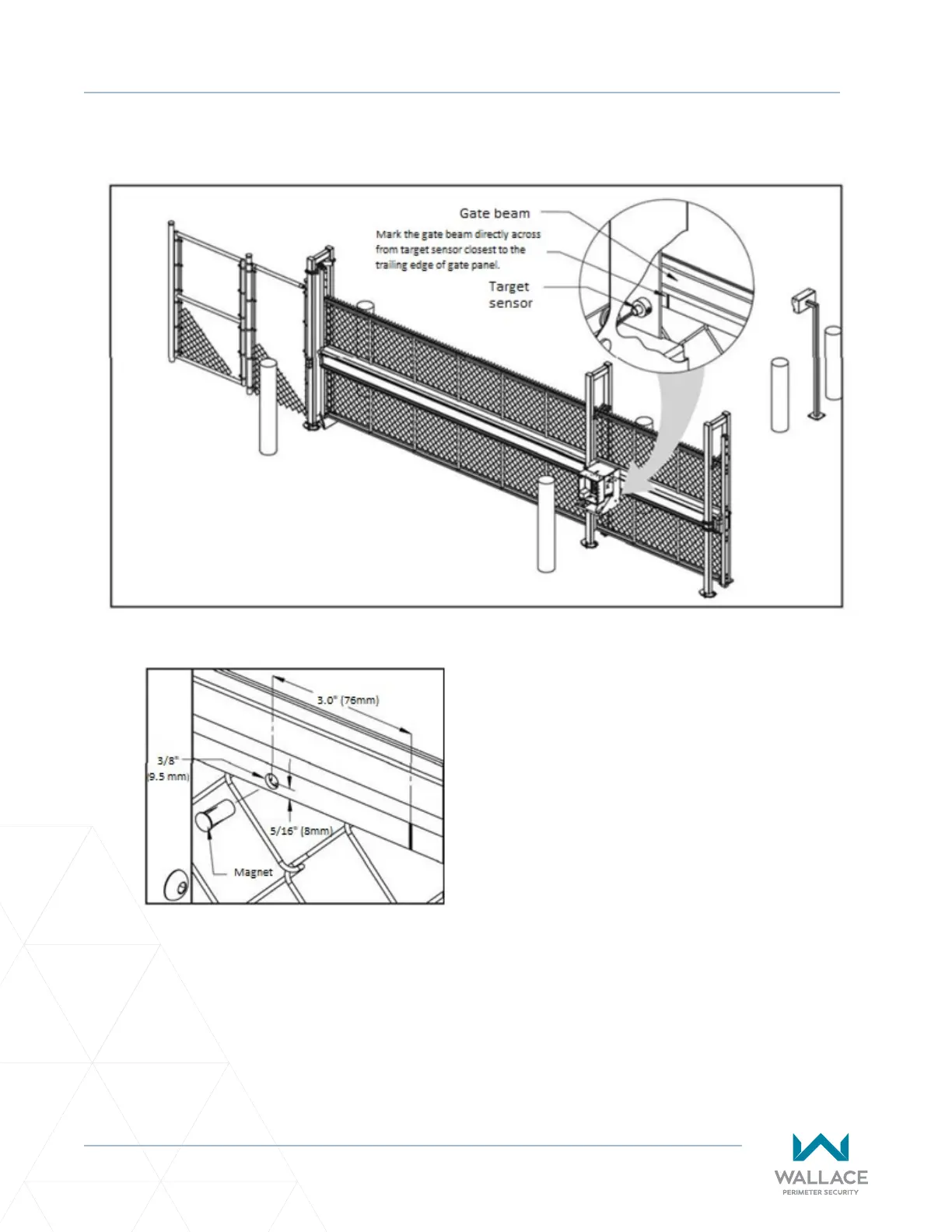
Figure 13. Marking Gate Beam
1. With the gate CLOSED, mark the gate beam
directly across from target sensor that is
closest to the trailing edge of the gate. See
Figure 13.
2. Press the OPEN buon to move the gate a few
feet and then press STOP.
3. Find the mark on the gate beam and measure
about 3” (76mm) toward the operator.
4. Drill a 3/8” (9.5mm) diameter hole in gate
beam and tooth rack 7/8” (22mm) deep as
shown in Figure 14.
5. Apply a small amount silicone into 3/8”
(9.5mm) hole in gate beam / tooth rack. Fully
press the magnet into the hole so the magnet
is ush with the gate beam.
6. Press OPEN and wait for the gate to travel and
stop at its full open posion.
7. Press CLOSE. As the gate approaches the full
close posion, the target magnet passes the
target sensor and an audible beep is heard.
Read the following NOTE, and then proceed to
step 8 to verify that the operator has learned
its limits.
Figure 14. Installing Magnet

Table of Contents