EasyManua.ls Logo

YASKAWA P1000

YASKAWA P1000
594 pages
To Next Page IconTo Next Page
To Next Page IconTo Next Page
To Previous Page IconTo Previous Page
To Previous Page IconTo Previous Page
Loading...
5.2 b: Application
u
b1: Operation Mode Selection
n
b1-01: Frequency Reference Selection 1
Selects the frequency reference source 1 for the REMOTE mode.
Note: 1. If a Run command is input to the drive but the frequency reference entered is 0 or below the minimum frequency, the RUN indicator
LED on the digital operator will light and the STOP indicator will flash. However, the RUN indicator LED will light in zero speed
control when A1-02 is set to 3, 6, or 7.
2. Press the LO/RE key to set the drive to LOCAL and use the operator keypad to enter the frequency reference.
No. Parameter Name Setting Range Default
b1-01 Frequency Reference Selection 1 0 to 4 1
Setting 0: Operator keypad
Input the frequency reference using the operator keypad with this setting.
Setting 1: Terminals (analog input terminals)
Using this setting, an analog frequency reference can be entered as a voltage or current signal from terminals A1, A2, or A3.
Voltage Input
Voltage input can be used at any of the three analog input terminals. Make the settings as described in Table 5.5 for the input
used.
Table 5.5 Analog Input Settings for Frequency Reference Using Voltage Signals
Terminal Signal Level
Parameter Settings
Notes
Signal Level
Selection
Function Selection Gain Bias
A1
0 to 10 Vdc H3-01 = 0
H3-02 = 0
(Frequency Reference Bias)
H3-03 H3-04
-10 to +10 Vdc H3-01 = 1
A2
0 to 10 Vdc H3-09 = 0
H3-10 = 0
(Frequency Reference Bias)
H3-11 H3-12
Set jumper S1 on the
terminal board to “V” for
voltage input.
-10 to +10 Vdc H3-09 = 1
A3
0 to 10 Vdc H3-05 = 0
H3-06 = 0
(Frequency Reference Bias)
H3-07 H3-08
Set DIP switch S4 on the
terminal board to “AI”.
-10 to +10 Vdc H3-05 = 1
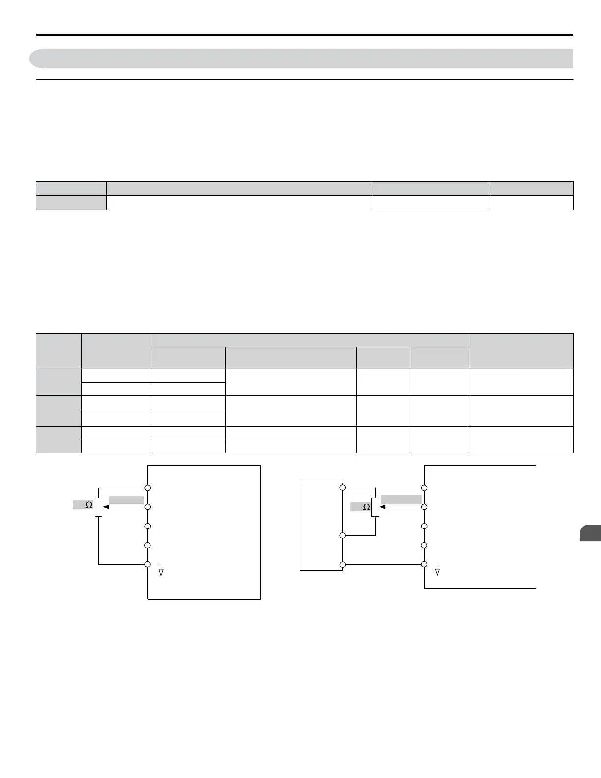
Drive
A1 Analog Input 1
0 to 10 V
AC Analog input common
2 k
+V
10.5 V, 20 mA power supply
A2 Analog Input 2
A3 Analog Input 3
Drive
A1 Analog Input 1
AC Analog input common
+V
10.5 V, 20 mA power supply
A2 Analog Input 2
A3 Analog Input 3
4 k
-10 to 10 V
OR
Customer
+/- 10 V
Supply
+10 V
-10 V
Common
Figure 5.1 Setting the Frequency Reference as a Voltage Signal at Terminal A1
Current Input
Input terminals, A1, A2, and A3 can accept a current input signal. Refer to Table 5.6 for an example to set terminal A2 for
current input.
5.2 b: Application
YASKAWA SIEP YAIP1U 01C AC Drive - P1000 Technical Manual
147
5
Parameter Details

Table of Contents

Other manuals for YASKAWA P1000

Related product manuals