EasyManua.ls Logo

Bruker B-ACS 60 - Figure 11.34.Valves and Motor Control Board H480

Bruker B-ACS 60
167 pages
To Next Page IconTo Next Page
To Next Page IconTo Next Page
To Previous Page IconTo Previous Page
To Previous Page IconTo Previous Page
Loading...
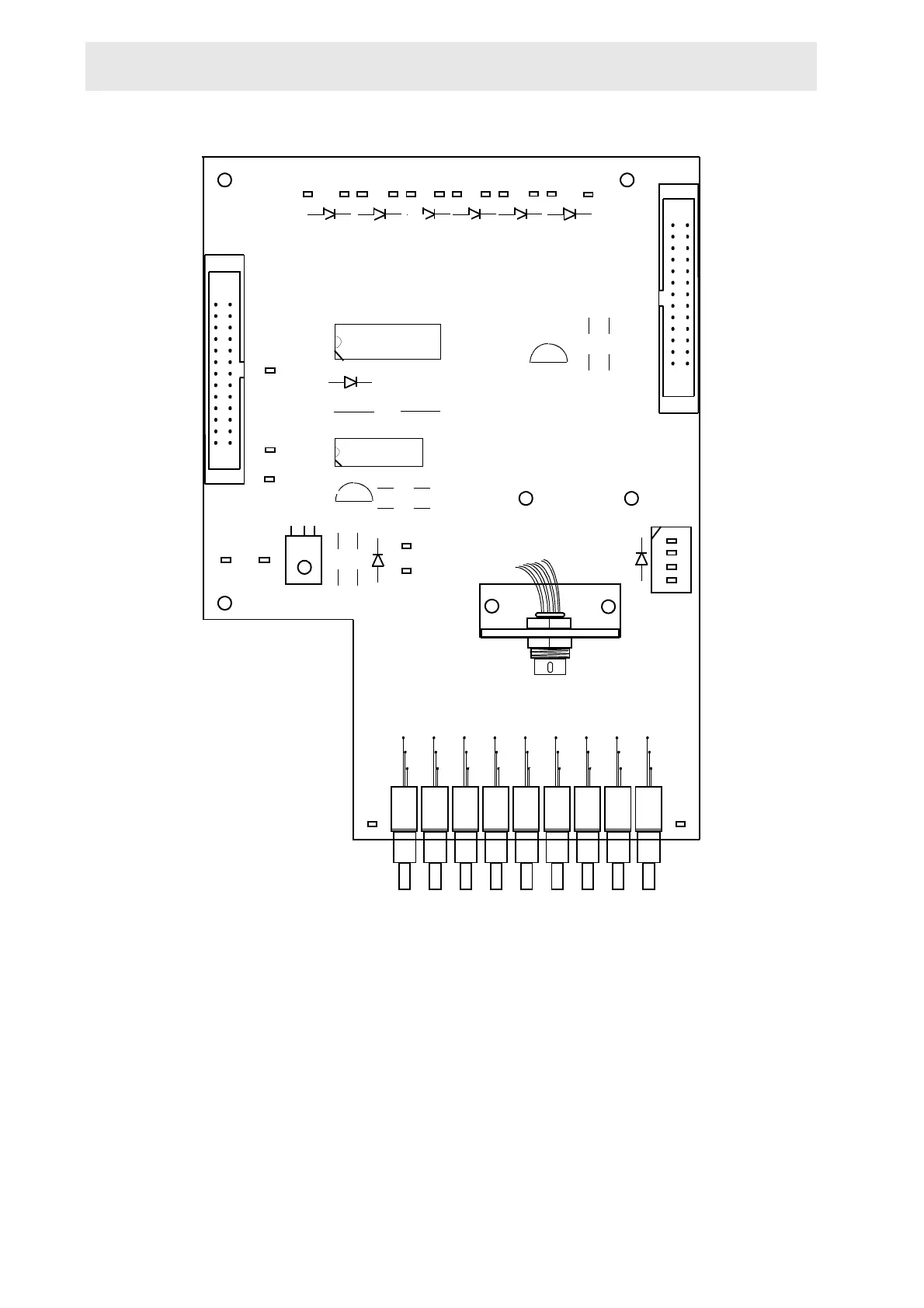
102 (167) BRUKER Installation Manual Version 001
Circuit Diagrams
Figure 11.34.Valves and Motor Control Board H480
26
1
Male Connector 26 Pin
26
1
Male Connector 26 Pin
BARO
TP6
BARU
TP1
TP7 TP12
TP8
BZRU
TP13TP9
BARS
TP15TP18
BARV
TP19
BARM
TP13TP9
1N4007 1N4007 1N4007 1N4007 1N4007 1N4007
D4 D5
D6
D7 D8 D3
1N4007
D2
DGND
TP4
TP5
TP3
TP20
UPRE
TP21
2
3 1
T4
ST2
ST1
B-ACS VALVES MOTOR CONTROL BOARD
H3P0383G
PGND
TP1
+24V
TP2
1
2
3
TA8
LIVE
TA6
DRUM
TA7
MAMA
TA4
ARMA
TA3
ZAUF
TA2
ARU
TA1
ARQ
TA5
ARSH
TA9
BARC READER
ST3
15K
10K
R6
D9
TP16
TP17
BLIVE
15K
R5
10K
R4
MPS
A14
1
2
3
T1
10K
R1
15K
R2
MPS
A14
1
2
3
T2
2K2
R3
SN74LS00N
IC2
L603C
IC1
D1
ZPD4.7
R7
BD679
1
2
3
1
2
3
1
2
3
1
2
3
1
2
3
1
2
3
1
2
3
1
2
3

Table of Contents