EasyManua.ls Logo

Danfoss VACON 100 FLOW Series - Page 45

Danfoss VACON 100 FLOW Series
334 pages
To Next Page IconTo Next Page
To Next Page IconTo Next Page
To Previous Page IconTo Previous Page
To Previous Page IconTo Previous Page
Loading...
M1
M1
M2
M2
M3
M3
3
B
A
e30bi977.10
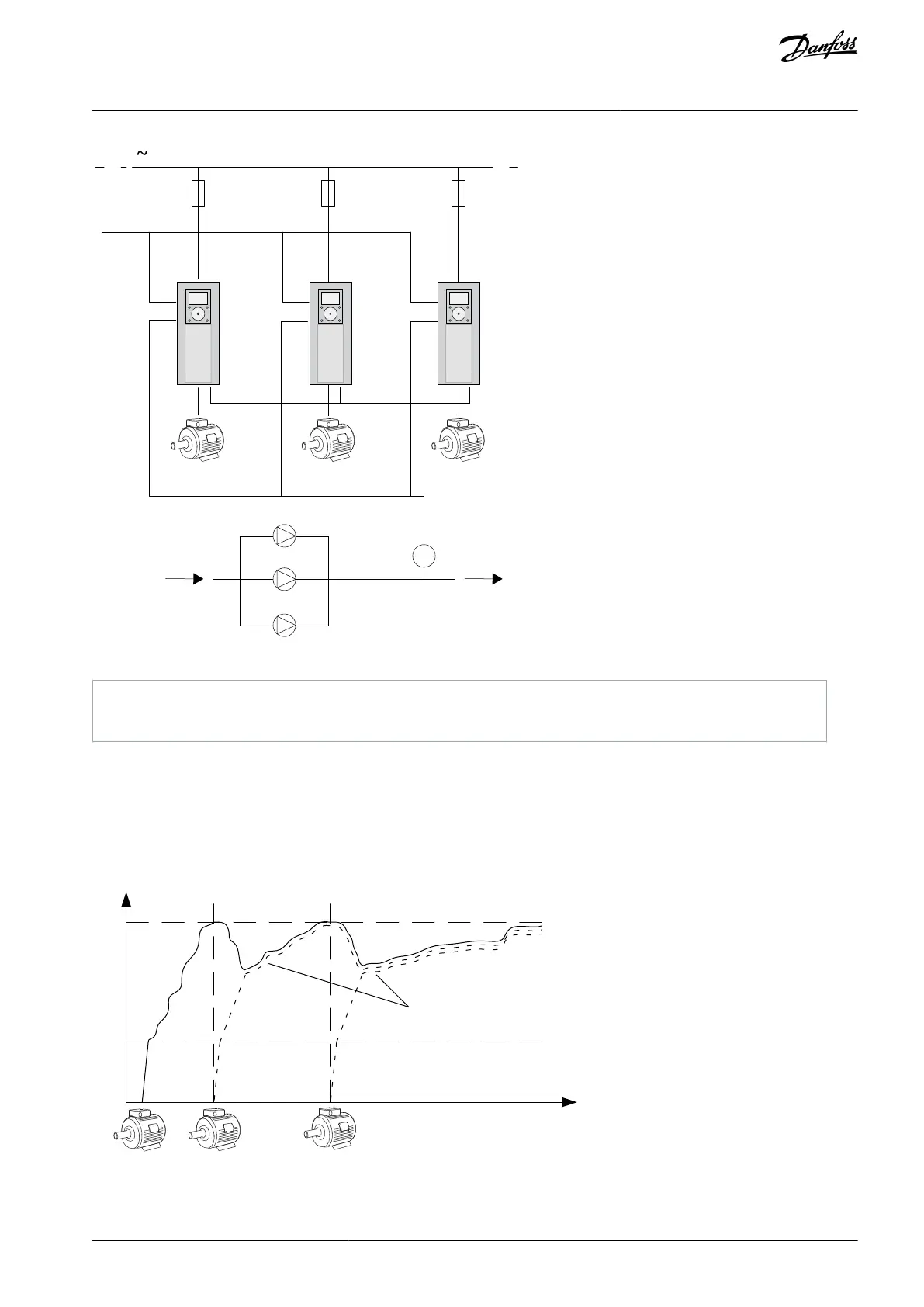
Illustration 15: Multi-pump (Multidrive) Configuration
A
Start / Stop
B
Pressure sensor
It is possible to control a process variable, the pressure, for example, by the control of the speed of the regulating motor and by the
number of motors that operate. The internal PID controller in the drive of the regulating motor controls the speed, the start and
stop of the motors.
The selected operation mode specifies the operation of the system. In the Multifollower mode, auxiliary motors follow the speed of
the regulating motor.
Pump 1 controls and pumps 2 and 3 follow the speed of pump 1, as the curves A show.
A
P1 P2 P3
f
max
f
min
RPM
t
e30bi978.10
Illustration 16: Control in the Multifollower Mode
AB298035655957en-000201 / DPD01083 | 45Danfoss A/S © 2023.08
Applications
VACON® 100 FLOW
Application Guide

Table of Contents

Related product manuals