EasyManua.ls Logo

Extra 300LX - Page 185

Extra 300LX
515 pages
Print Icon
To Next Page IconTo Next Page
To Next Page IconTo Next Page
To Previous Page IconTo Previous Page
To Previous Page IconTo Previous Page
Loading...
CHAPTER 27
PAGE 4
PAGE DATE: 1. March 2011
MAINTENANCE MANUAL EXTRA 330LX
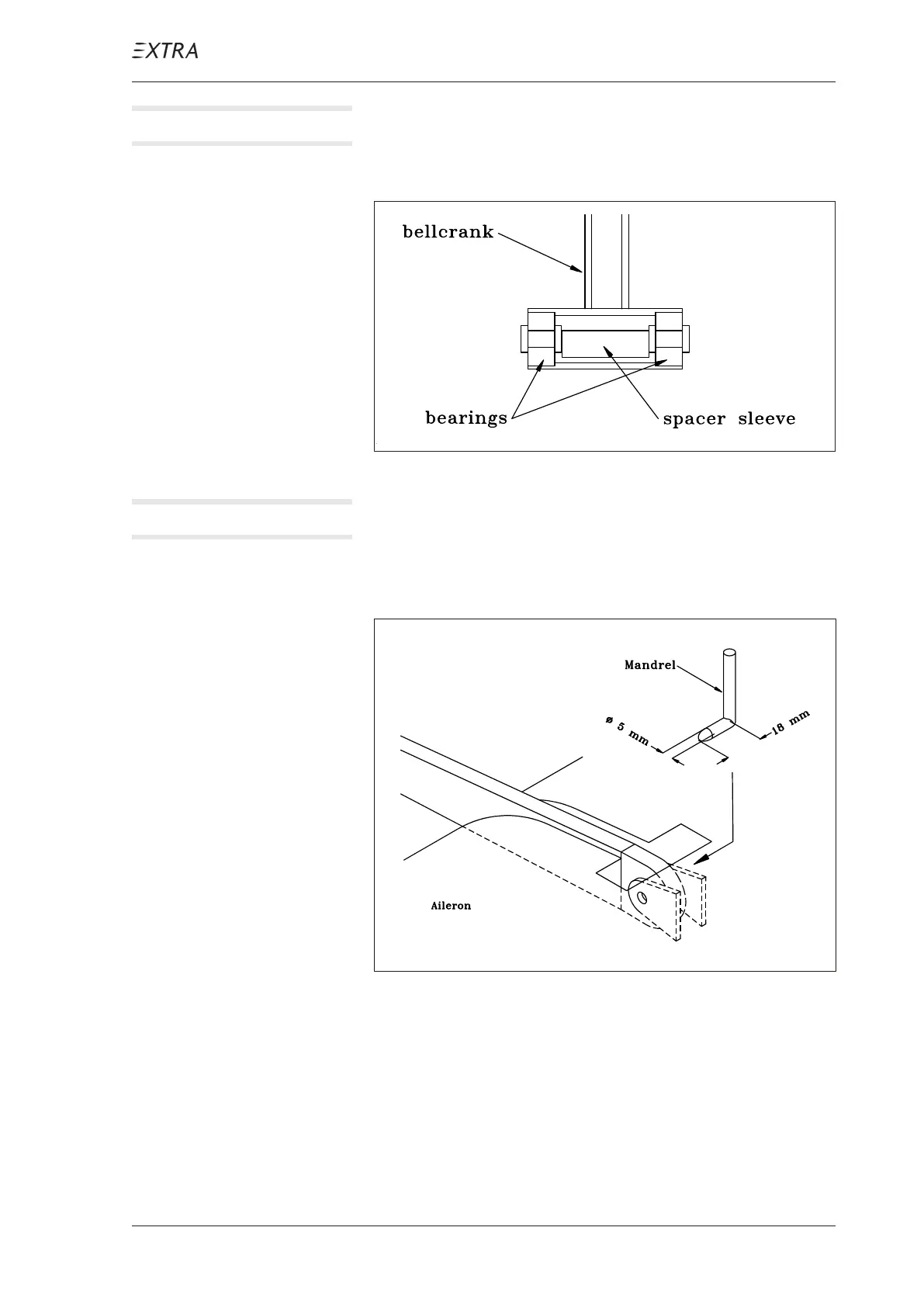
N O T E When installing a bellcrank or control stick the spacer
sleeve inside the bearing could be displaced as shown
in figure 2. Use a mandrel to adjust the spacer sleeve.
Figure 2 Spacer Sleeve Displaced
N O T E When installing a control surface use mandrels as
shown in the following figure 3 to preset the control
surface. Then press out each mandrel by pushing a bolt
into the bearing.
Figure 3 Control Surface Mounting Aid

Table of Contents

Related product manuals