EasyManua.ls Logo

Extra 300LX - 51-70-08 Re-Bonding of Bushings

Extra 300LX
515 pages
Print Icon
To Next Page IconTo Next Page
To Next Page IconTo Next Page
To Previous Page IconTo Previous Page
To Previous Page IconTo Previous Page
Loading...
CHAPTER 51
PAGE 38
PAGE DATE: 14. August 2015
MAINTENANCE MANUAL EXTRA 330LX
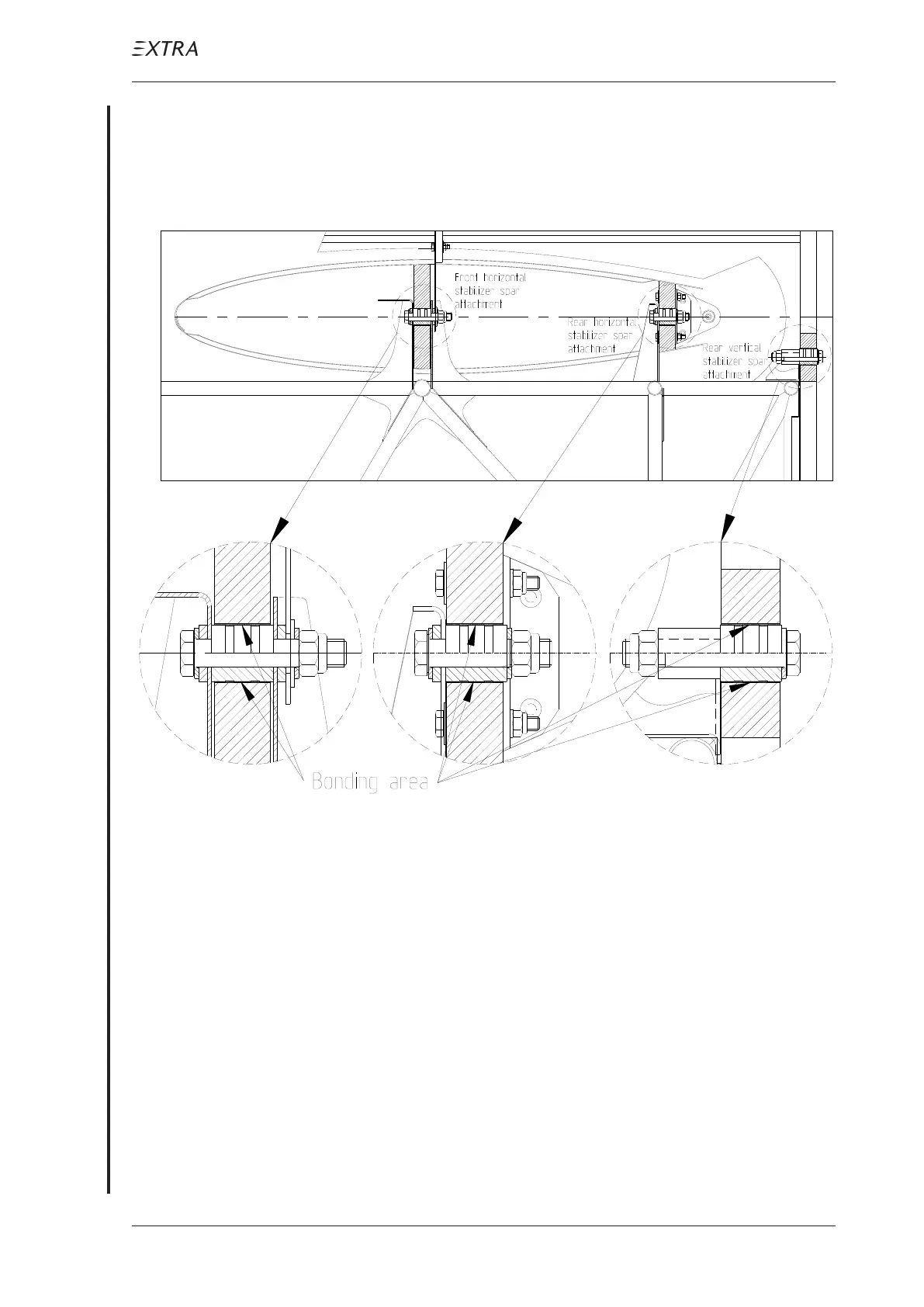
51-70-08 Re-Bonding of Bushings
a) Re-bonding of loose bushings in empennage spars
Figure 10 Empennage attachment bushings
Re-bonding of main attachment bushings positioned in the
web of the front and rear spar in the horizontal tail as well as
in the main spar of the vertical stabilizer is only permissible
if the hole in the related spar web is not elongated or has
impermissible irregular wear which is evidence of bearing
stress exceedance.
In case the bushing fits the hole in the spar web tightly, use
epoxy-resin Epikote Resin L20 with Epikure Curing Agent
960 (ref. Chapter 51-30-01). If the gap between bushing and
hole in the spar web exceeds 0.5mm (0.02") use a mixture of
epoxy resin compound L20/960 and cotton flocks. The
weight ratio should be 100 parts L20/960 with 7 up to 15
parts cotton flocks (so called "HB7" and "HB15").

Table of Contents

Related product manuals