EasyManua.ls Logo

Extra 300LX - Page 463

Extra 300LX
515 pages
Print Icon
To Next Page IconTo Next Page
To Next Page IconTo Next Page
To Previous Page IconTo Previous Page
To Previous Page IconTo Previous Page
Loading...
1
1
2
2
3
3
4
4
D D
C C
B B
A A
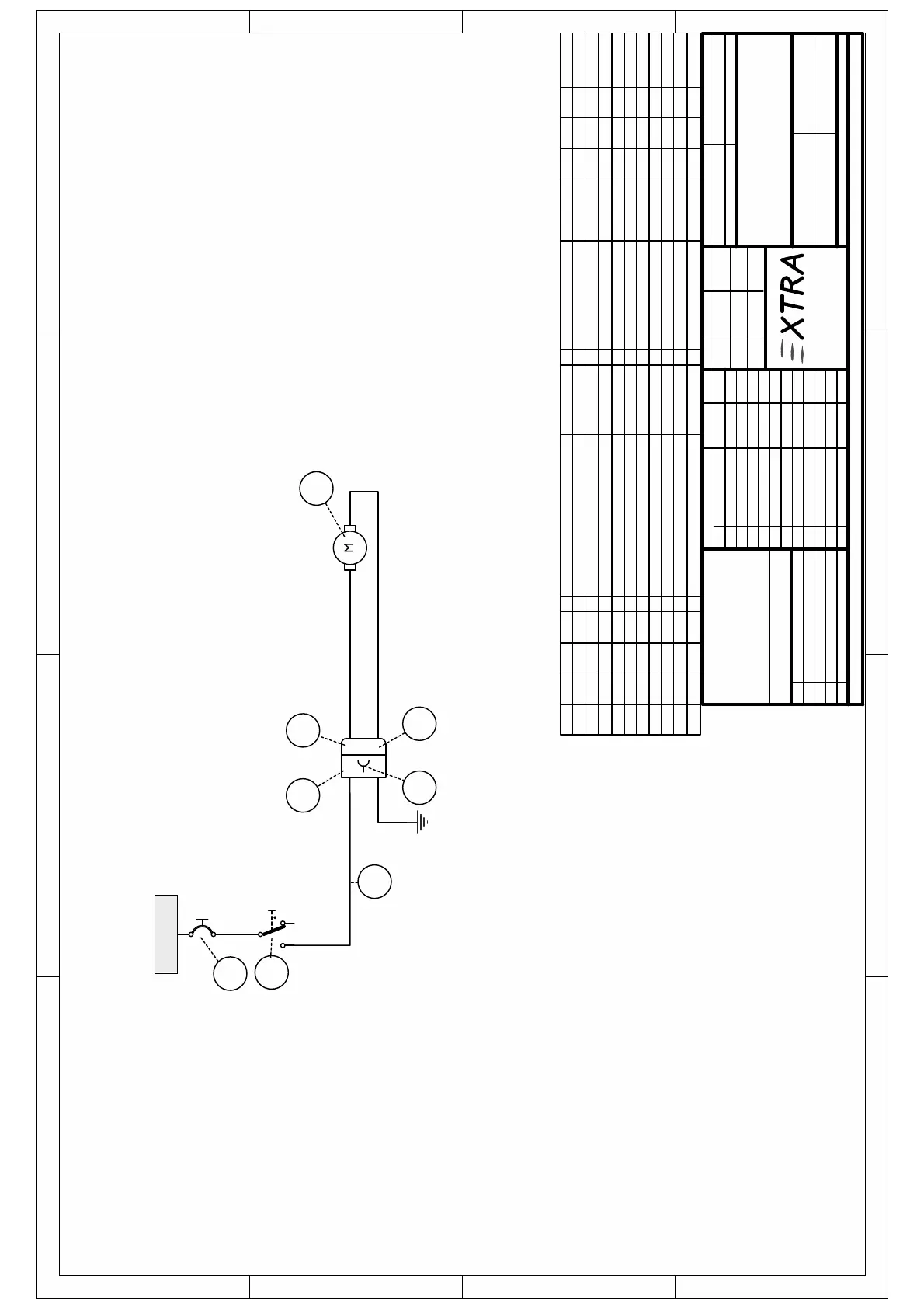
EA 300/LC
FUEL BOOST PUMP
EA-9E102.11
10.12.10
HW
1A4 1
EA3E0905
0204 03 BenennungNr01 Teilekennzeichen ZF Werkstoff Abmessungen Menge GewichtEinheit MaWi-Nr.
1
1
31505
00126CIRCUIT BREAKER 10A
7277-2-10CIRCUIT BREAKER 10A
W23X1A1G-10
1
1
335513 FUEL PUMP PX580-TC-XT1
2
07.1.1.13SWITCH SPST1 FE4025
00776
4
WIRE AWG 18
MIL-W-22759/16-18
mtrX
OPTION 02 = mit MS SWITCH & POTTER-BRUMFIELD CB
OPTION 01 = mit KISSLING SWITCH & KLIXON CB
1
X
BOOST
PUMP
10A
2
1
3
BOOST
ON OFF
PUMP
MAIN-BUS
#18
red
blk#18
#18
BOOST PUMP
OPTION 01 & 02
#18
1
8
6 5
7
3
4
2
6
5
2
FLACHSTECKER PIN 6,3mm
PIN GEUSE 2 POLIG
00099
00103
00097
180924-0
180923-0BUCHSEN GEHÄUSE 2 POLIG
FLACHSTECKER BUCHSE 6,3mm 0042282-2 00093
42565-2
8
7
1
1
2
2
1
1
2
1
2
2
MS35058-22SWITCH SPST1 01602
Die Gültigkeitszuordnung
von Version zu
dem jeweiligen Fertigungsauftrag
zu entnehmen.
Zuordnung links / rechts wird mit
*/* in allen Feldern angegeben.
04
03
02
01
Ver. Bezeichnung
Nr.: Änderung/Mod. Nr.: Datum Name
Letzte Bearbeitung:
Datum Name
Bearb.:
Gepr.:
Maßstab
SI.-Klasse
Oberflächenschutz
Projektion
Freimaßtoleranz
Oberfläche
Schutzvermerk nach DIN 34 beachten.
EDV-Kennung:
auf
Blatt von
Schwarze Heide 21
46569 Hünxe, Germany
Gepr.:
Flugzeugbaureihe
ist der Bauakte bzw.
see conforming ELEKTRIK SYSTEM
EA-9__102.1
#16
#16

Table of Contents

Related product manuals