EasyManua.ls Logo

Extra 300LX - Page 499

Extra 300LX
515 pages
Print Icon
To Next Page IconTo Next Page
To Next Page IconTo Next Page
To Previous Page IconTo Previous Page
To Previous Page IconTo Previous Page
Loading...
1
1
2
2
3
3
4
4
D D
C C
B B
A A
EA 300/LC
GPSMAP 695
EA-9E102.60
19.05.11 HW
1
A4
1
EA3E0919
0203
BenennungNr
01
Teilekennzeichen ZF Werkstoff Abmessungen Menge GewichtEinheit MaWi-Nr.
1
GPSMAP 696 PANEL DOCK
PANEL DOCK1
Die Gültigkeitszuordnung
von Version zu
dem jeweiligen Fertigungsauftrag
zu entnehmen.
Zuordnung links / rechts wird mit
*/* in allen Feldern angegeben.
04
03
02
01
Ver. Bezeichnung
Nr.: Änderung/Mod. Nr.: Datum Name
Letzte Bearbeitung:
Datum Name
Bearb.:
Gepr.:
Maßstab
SI.-Klasse
Oberflächenschutz
Projektion
Freimaßtoleranz
Oberfläche
Schutzvermerk nach DIN 34 beachten.
EDV-Kennung:
auf
Blatt von
Schwarze Heide 21
46569 Hünxe, Germany
Gepr.:
Flugzeugbaureihe
ist der Bauakte bzw.
2
3
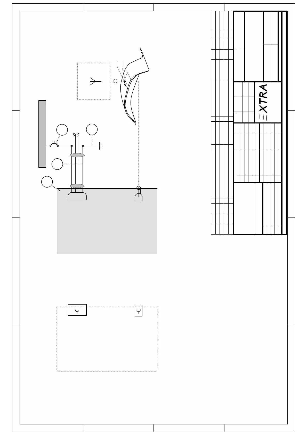
CIRCUIT BREAKER 5A 7277-2-5
010-11206-15
POWER DATA CABLE
1
1
GPS ANTENNA
5A
GPS
#20
red
yel
blu
14 VDC POWER
1
2
3
4
DATA IN
blk
#20
GPSMAP 696 PANEL DOCK
GA-25 MCX
1
3
2
AVIONIC-BUS
GROUND
DATA OUT
4
mtr 00775MIL-W-22759/16-20
WIRE AWG 20
X
4
GPS ANTENNA
GARMIN GPSMAP
9 - 40 VDC POWER
1
2
3
4
DATA IN
GPSMAP 695
GROUND
DATA OUT
J1
J2
AIR GIZMOS
P2
MCX
Loch 8mm mit Gummituelle
doppelseitiges Klebeband
130 mm
hintere Instrumentenbrettabdeckung
P1
mit Schaumstofftraeger
zur Antennenbefestigung
33668
31506
33665

Table of Contents

Related product manuals