EasyManua.ls Logo

FEC AFC3000 - Page 69

FEC AFC3000
294 pages
Print Icon
To Next Page IconTo Next Page
To Next Page IconTo Next Page
To Previous Page IconTo Previous Page
To Previous Page IconTo Previous Page
Loading...
Chapter 4 Installation and Wiring
PAGE 4-6
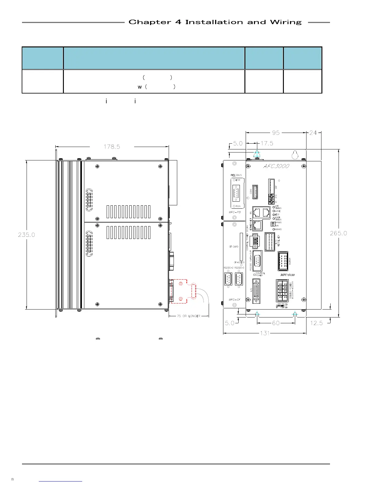
Dimensions with an Expansion unit are stated below.
Type Installation Weight
Internal
fan
MFC-S120
Two bell screw hole: M6 screw
upper part
Two elongated holes: M6 screw
Lower part
4.4kg 2
The weight of Expansion Unit 1 is 0.3kg and the weight of Expansion Unit 2 is 0.4kg.

Table of Contents

Other manuals for FEC AFC3000