EasyManua.ls Logo

Hisun HS700UTV-4 - Page 217

Hisun HS700UTV-4
388 pages
Print Icon
To Next Page IconTo Next Page
To Next Page IconTo Next Page
To Previous Page IconTo Previous Page
To Previous Page IconTo Previous Page
Loading...
CHASSIS
- 204-
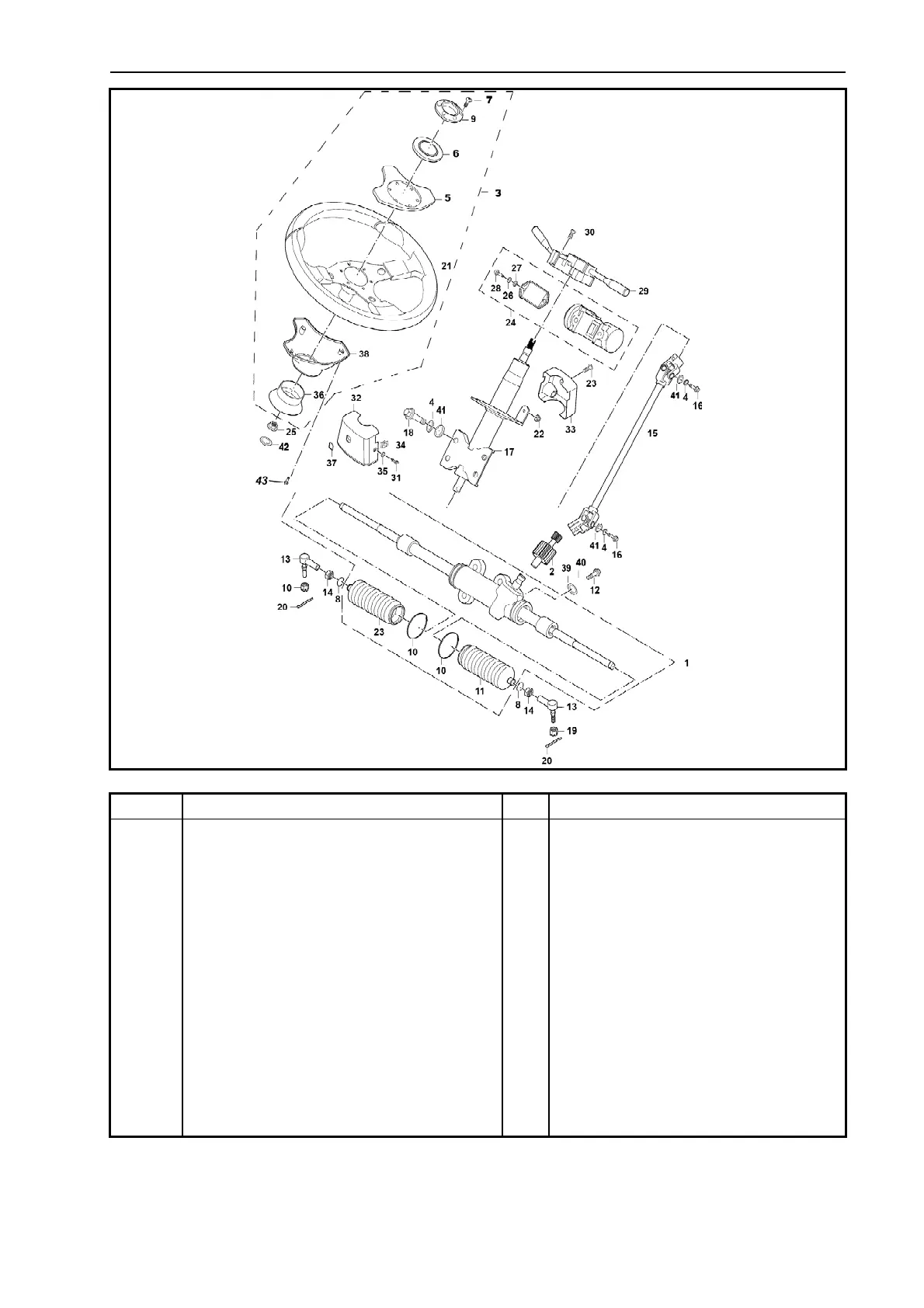
No. Part Name Qty Remarks
10 Clip 2
11 Rubber dust cover 2
12 Hexagon flange bolt M10×1.25×35 4
13 Ball joint, steering mechanism 2
14 Hexagonal nut M12 2
15 Steering drive axle 1
16 Hexagon flange bolt M8×30 2
17 Steering column 1
18 Hexagon flange bolt M8×25 4
19 Hexagon nut M12×1.25 3
20 Cotter pin 2×25 2
21 Steering wheel body 1

Table of Contents

Related product manuals