EasyManua.ls Logo

Hisun HS700UTV-4 - Parking Brake Caliper and Brake Pads

Hisun HS700UTV-4
388 pages
Print Icon
To Next Page IconTo Next Page
To Next Page IconTo Next Page
To Previous Page IconTo Previous Page
To Previous Page IconTo Previous Page
Loading...
CHASSIS
- 227-
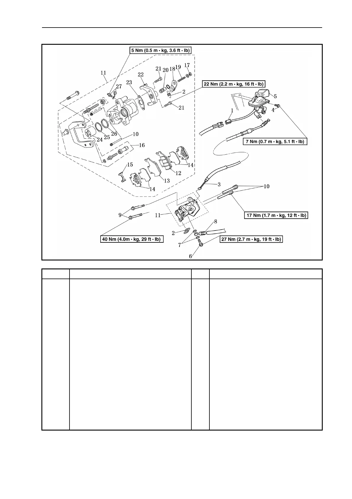
PARKING BRAKE CALIPER AND BRAKE PADS
No. Part Name Qty Remarks
Removing the parking brake caliper
and brake pads
parking skid plate
Brake fluid
1 Parking brake switch coupler 1
2 Spring 1
3 Parking brake cable 1
Parking brake lever assembly mounting
4
Bolt
1
5 Parking brake lever assembly 1
6 Union bolt 1
7 Copper washer 2
8 Brake hose 1
9 Brake caliper mounting bolt 2
10 Brake caliper mounting bolt 2

Table of Contents

Related product manuals