EasyManua.ls Logo

JRC JMA-9110-6XA - Ntg-3230; B.6.12 Ntg-3230

JRC JMA-9110-6XA
572 pages
Print Icon
To Next Page IconTo Next Page
To Next Page IconTo Next Page
To Previous Page IconTo Previous Page
To Previous Page IconTo Previous Page
Loading...
JMA-9100 Instruction Manual > B.DRAWINGS > B.6 Interconnection Diagram of Scanner Unit
B31
B
B.6.12 NTG-3230
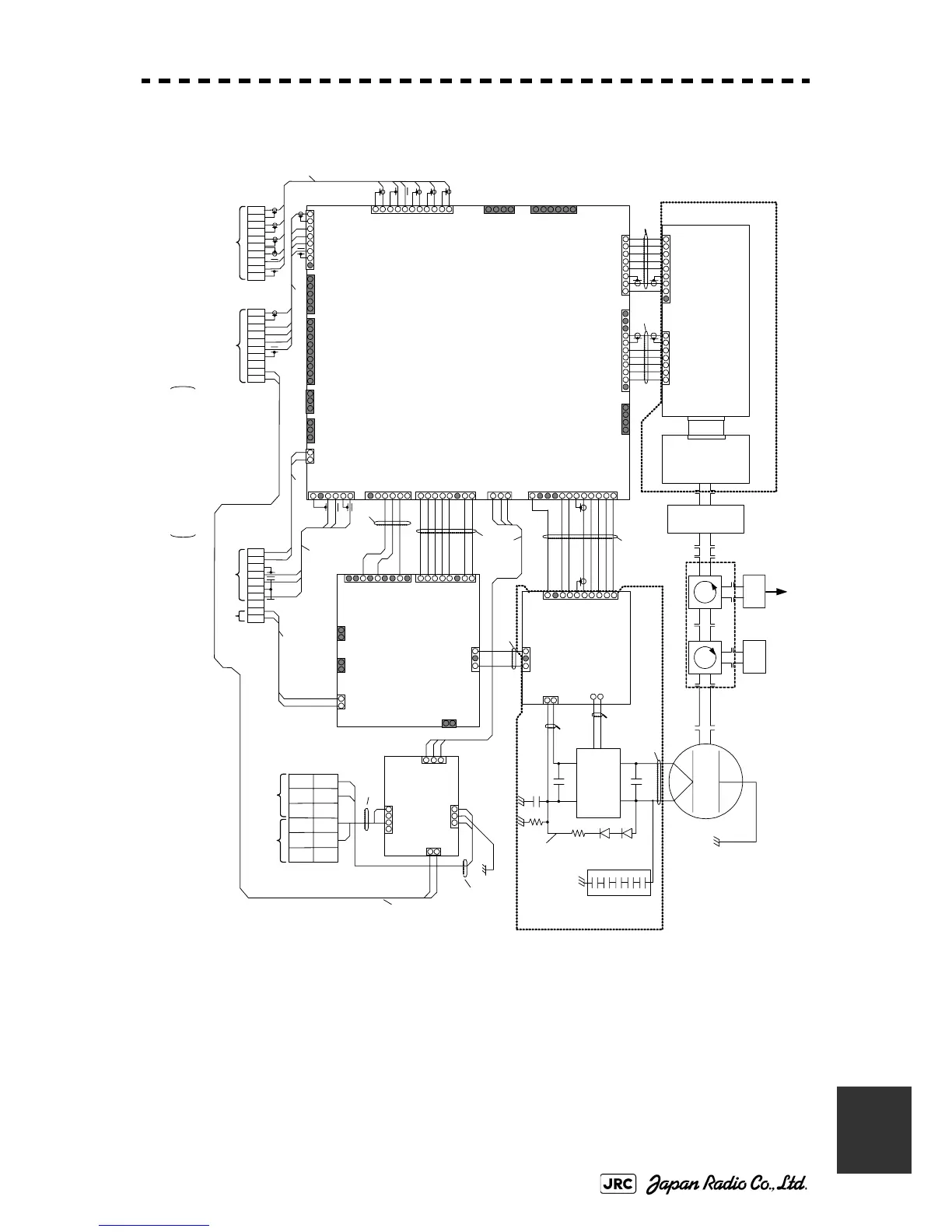
Fig B-28: Interconnection Diagram of NTG-3230
NTG-3230
送受信機機内接続図
1.TGT
2.TGTE
3.TNL
4.-15V
5.TNI
6.+15V
7.GND
1.BS3
2.BS2
3.BS1
4.TNC
5.MPS
6.VDE
7.VD
RECEIVER UNIT NRG-229
IF CIRCUIT CAE-499
J101
IL-9P
J102
IL-7P
T/R CONTROL CIRCUIT
CMC-12 05R
1.MONI
2.GS
3.GSE
4.TGT
5.TGTE
6.TNL
7.-15V
8.TNI
9.+15V
10.GND
11.TRG2
1.BS3
2.BS2
3.BS1
4.TNC
5.MicPS
6.VDINE
7.VDIN
8.+5 V
1.RXD
2.TXD
3.+5V
4.GND
1.SHORT
2.MAGI
3.X1
4.X2
5.TI
6.TIE
7.+15V
8.GND
9.NC
10.NC
11.NC
12.NC
1.HMCNT
2.+15V
3.GND
1.+15V
2.+12V
3.GND
4.GND
5.-15V
6.10V
7.10VE
8.+5V
1.MCT
2.MBK
3.TISTOP
4.GND
5.MPS
6.MIER
1.TIY
2.TI YE
3.BP
4.B PE
5.BZ
6.B Z E
1.+12V
2.GND
3.FAN_ERR1
1.HT ER1
2.HVGA T E1
3.T IS TO P1
4.GN D
5.CNT
6.+5V
7.+15V
8.S T A BY_R EQ
9.NC
1.PW1
2.PW2
3.PW3
4.+24V
5.GND
1.PTI
2.PTE
3.LVR
4.PMS
5.GND
6.TXI
7.TXE
8.NC
1.BP+
2.BP-
3.BZ+
4.BZ-
5.TRIG+
6.TRIG-
7.MTR+
8.MTR-
9.MTRE
10.VD+
11.VD-
1.VD
2.VDE
3.MTR+
4.MTR-
J1118
J1103J1104
J1111
J1191
J1110J1109
TB101
J8
J1106
J1112 J1113
IL-G-12P
IL-8P
IL-G-8P
IL-G -11 P
B6P-SHF
IL -G-9P
MSTBA2.5/11-G
IL-G-5P
B3P-SHF
IL-4P
B8P-SHF
IL-G-3P
MAG
POWER SUPPLY CIRCUIT
CBD-1682A
1.+15V
2.+12V
3.+8V
4.G ND
5.-15V
6.10V
7.10VE
8.+5V
1.MCT
2.MBK
3.HSP
4.HTER
5.TI ST OP
6.C2
7.GND
8.MPS
9.MIER
2.1 A
1.2 A
2.1 A
1.2 A
2.1 A
1.2 A
1.MH
2.NC
3.MN
1.MH
2.NC
3.MN
1.X1
2.X2
No.2
No.1
2
1
4
35
6
FILTER
J1004
J1003
J 5J 4
J 3
J1002
J2102
J2101
J2103
ANTENNA
1.SHORT
2.MAGI
3.X1
4.X2
5.TI
6.TIE
7.+15V
8.G N D
9.NC
10.NC
B9P-SHF
B8P-SHF
B02P-NV(LF)(SN)
350209-1
IL-10P
350209-2
350209-1
MODULATOR CIRCUIT
CPA-264
MODULATOR UNIT
INTERCONNECTION
CMB-407
TRHPL
②①
GRN
C201
0.01UF 1KV
C202
0.22UF 200V
R202
2.7KΩ
1/2W
C203
0.22UF
200V
T1
R201
150Ω
8W
H-7LPRD0122
CD202
CD201
MD-12N1MD-12N1
NJC3317
201
M1555
101
RECEIVER UNIT
INTERCONNECTION
P3001
P3002
P1109
P1110
P1104
P1103
P1003
P1004
P1111
PUL SE TRANS
W201
BLK.T
P3
P2103
P1118
DUMMY
205
(W001)
(W002)
(W003)
(W006)
P1002
1.+12V
2.GND
3.FAN_ERR2
J1114
IL-G-3P
1.+12V
2.C 2
J1105
IL-G-2P
P1105
MODULATOR UNIT
NMA-553
P8
TRANSCEIVER UNIT INTERCONNECTION
CMK-594
(W106)
(W103)
(W104)
(W105)
ZCRD1218※
ZCRD1227
ZCRD1229
P1201
J1 IL-G-6P
J2 IL-G-4P
PTI
PTE
LVR
PMS
E
TXI
TXE
E
VERR
VD+
VD-
TRIG+
TRIG-
BP+
BP -/BZ -
BZ+
MTRE
MTR-
MTR+
TB201 TB204
(W301)
ZCRD1215※
ZCRD1228
(W302)
ZCRD1216※
A203
TL378A
ZCRD1219※
ZCRD1230※
CMA -9 02
ZCRD1217※
ZCRD1231※
ZCRD1220※
(W00 4)
(W005)
ZCRD1221
ZCRD1222
1.φZ
2.φZE
3.φA
4.φB
5.+12V
6.GND
J13
IL-6P
BLK
RED
BLK
RED
+12V
C2
φZE
φZ
φA
GND
φB
+48VG
+48V
+48V
+48VG
RED.T
WHT.T
RED
WHT
(W008) ZCRD1224※
SCANNER
UNIT
SCANNER UNITDISPLAY UNIT
SCANNER
UNIT
DISPLAY
UNIT
(W203) ZCRD1232※
(W007)
ZCRD1223※
HC3L2
3L1
3L1
3L2
TB203
TB202
P2101
P2102
P101
8.+5V
9.NC
RF CIRCUIT
CAF-595
(W014)
ZCRD1226※
J1001
350428-1
1.M+
2.M-
1586514-2
(W013) ZCRD1225※
1586514-2
S.G.
S.G. S. G.
U1
V1
U0
V0
U1
U0
V1
V0
DISPLAY
UNIT
H-7ANRD0018
(W303)
ZCRD1484※
RELAY FILTER CIRCUIT
CSC-656
PC1201
IL-3P
1.H MCN T
2.+15V
3.G N D
P1211
P1202
1.MU2
J1212
1.VERR
2.E
3.MV2
J1202
J1201
J1211
1.U1
3.V1
2.N C
4.N C
2.GND
B4P-VH
B3P-NV
IL-3P
IL-2P
P1212
S. G.
CFR-229
MAG FILTER C IRCUIT
220pF×5
YEL
S.G.
H-7 ZCRD####*:
#” means spe cif ication d ocument No.
*” means revi sion of the specfication do cume nt.

Table of Contents

Other manuals for JRC JMA-9110-6XA

Related product manuals