EasyManua.ls Logo

TOHATSU BFT75A - Page 141

TOHATSU BFT75A
609 pages
Print Icon
To Next Page IconTo Next Page
To Next Page IconTo Next Page
To Previous Page IconTo Previous Page
To Previous Page IconTo Previous Page
Loading...
4-28
dummyheaddummyhead
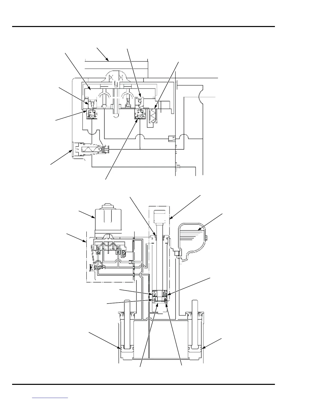
TROUBLESHOOTING
[10] PUMP
[11] DOWN RELIEF VALVE
[1] MOTOR
[15] UPPER CHAMBER SPOOL VALVE
[14] UPPER CHAMBER CHECK VALVE
[2] MANUAL VALVE
[12] LOWER CHAMBER
CHECK VALVE
[13] LOWER CHAMBER
SPOOL VALVE
PISTON ROD A ASSEMBLY
[8] DUST SEAL/O-RING
[1] MOTOR
[10] PUMP ASSEMBLY
[6] O-RING
[7] SHOCK RELIEF VALVE
[5] CHECK VALVE
FREE PISTON
[3] BACKUP RING
/O-RING
[14] UPPER CHAMBER CHECK VALVE
[9] OIL
[3] BACKUP RING
/O-RING
[4] BACKUP RING
/O-RING

Table of Contents

Related product manuals