EasyManua.ls Logo

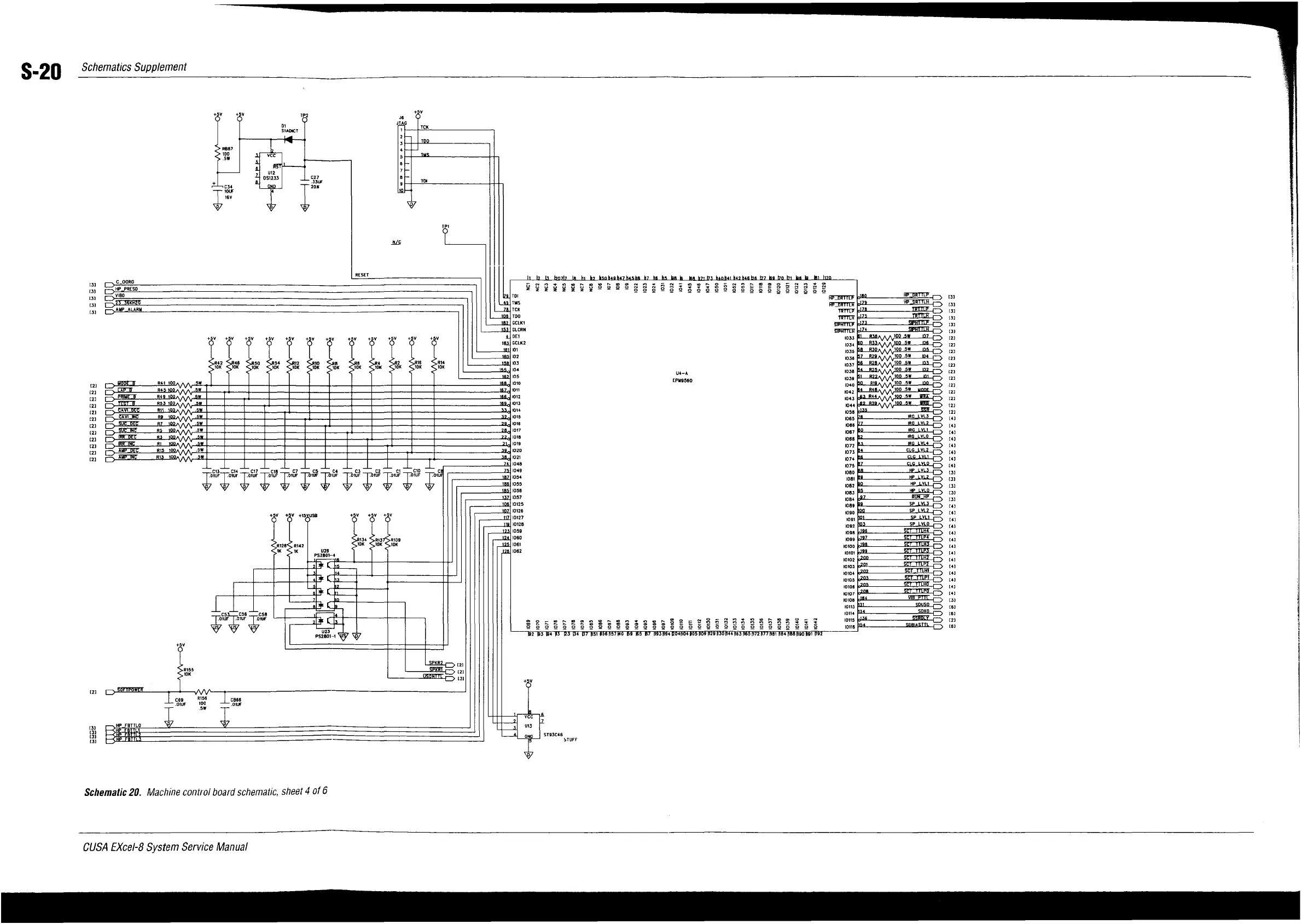
Valleylab CUSA EXcel-8 - Schematic 20. Machine Control Board Schematic, Sheet 4 of

Valleylab CUSA EXcel-8
239 pages
Print Icon
To Next Page IconTo Next Page
To Next Page IconTo Next Page
To Previous Page IconTo Previous Page
To Previous Page IconTo Previous Page
Loading...
S-20
Schematics
Supplement
(3)
[3]
[51
[31
[31
121
{21
[21
(2
12)
{21
(2)
(2)
(2)
(2)
(2)
12)
CIS
Cie
C17
σι
cz
C5
C4
сз
c2
ci
cio
+
ď
OUF
ОЕ
Г Г г
om
Г”
U26
PS2801--4
121
Schematic
20.
Machine
control
board
schematic,
sheet
4
of
6
ST93C46
STUFF
U4-A
EPM9560
13)
(3)
13)
(31
[31
[51
[2]
[2]
[2]
121
12)
12)
12]
12)
121
12]
12)
{21
14)
14)
[4
14
141
14)
141
4]
131
13)
13)
(3)
131
(4
[4
(4
(41
(41
(41
141
[41
[4]
4
【41
[1]
(4)
(4)
(3
161
[61
(2)
(6)
CUSA
EXcel-8
System
Service
Manual
oitenta

Table of Contents

Related product manuals