EasyManua.ls Logo

WinGD X72 - 4003-2;A1

WinGD X72
514 pages
Print Icon
To Next Page IconTo Next Page
To Next Page IconTo Next Page
To Previous Page IconTo Previous Page
To Previous Page IconTo Previous Page
Loading...
Operation
40032/A1
Winterthur Gas & Diesel Ltd.
1/ 1
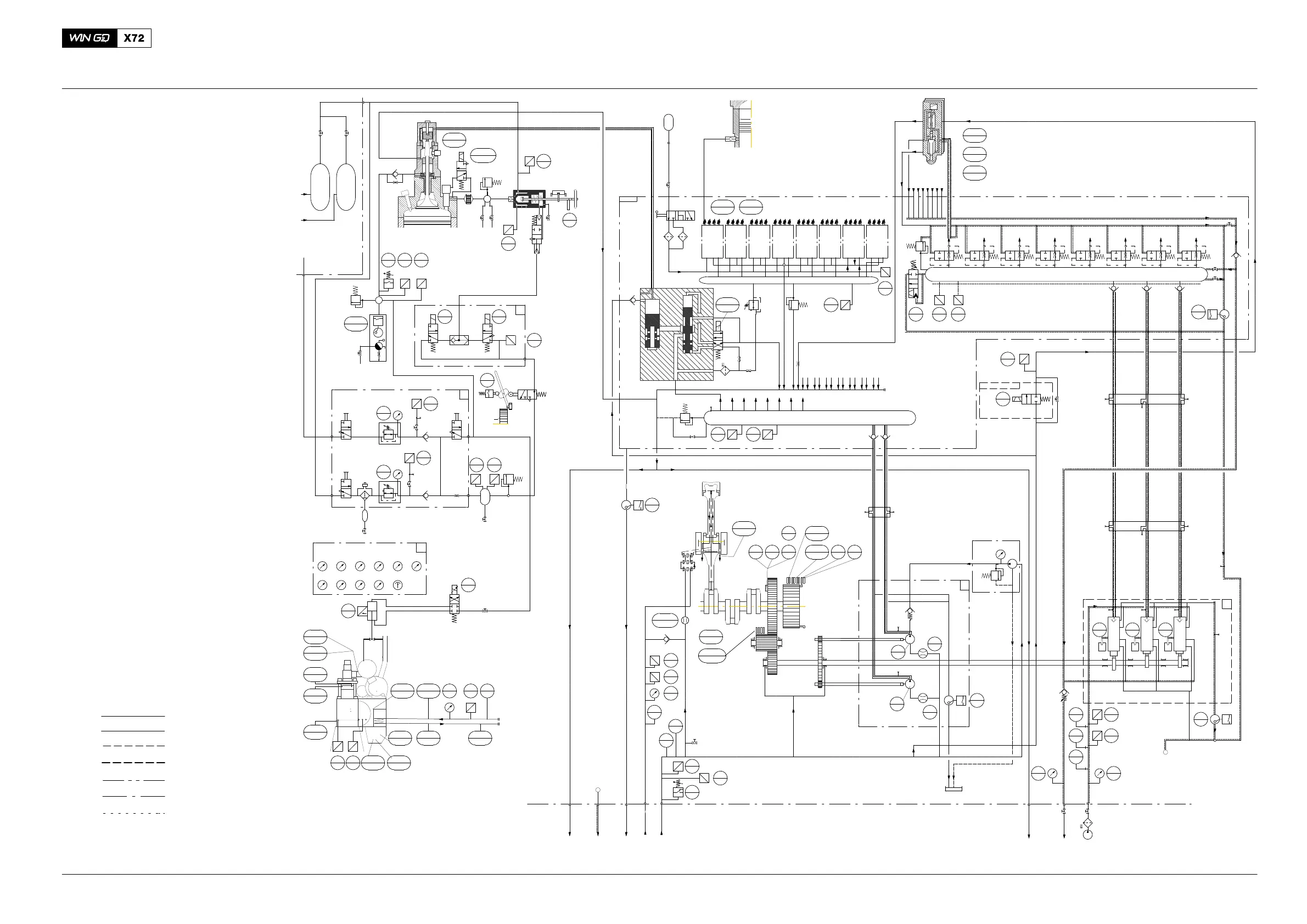
Low pressure oil
Circuits:
High pressure oil
Low pressure fuel
High pressure fuel
Heating
Control air
Starting air
A
B
D
E
K
Control air supply unit
Fuel supply
Servo oil supply
Valve unit for start
Local control panel
WCH03091
30 bar 30 bar
5 bar
10
m
125 m
300 bar
710bar
1000 bar
A2
A3
A6
A1
15 l
65 bar
4 bar
ambient pressure
ambient pressure
ambient pressure
930B001 930B002
930V04
930V03
352751_CX_2
30.2728_CX_1
3/2WAY VALVE
30.8605_CX_1
35.31HA
3/2WAY VALVE
PT1101C PT2002C
PT4341C PT4421C
I
P
I
P
TURNING GEAR
502751_CX_1
PT3421C
I
P
I
P
SI5101M
PT3462C
PT2071C
CRANKSHAFT
20B009
CRANKCASE
(DRAIN)
352751_CX_1
35115HA
35.4325_E0_3
3/2WAY VALVE
35.4325_E0_2
3/2WAY VALVE
PT4301C
102710_CX_Y
257206_C1_1
257206_C2_1
257206_C3_1
257206_C4_1
257206_C5_1
257206_C6_1
257206_C7_1
257206_C8_1
35.4325_E0_5
2/2WAY VALVE
CLOSED
OPENED
AUTOMAT
304325_E0_1
I
P
2001A
PT
2002S
PS
4043C
PT
4044C
PT
4301C
PT
5017C
PT
7014C
CV
7013C
CV
5016C
ZS
4341S
PS
4341A
PT
1361A
PT
CV
724148C
ZT
542128C
910.F05
910D015
ST
513134C
5123C
ZS
5124C
ZS
49
50
40
45
2002C
PT
25
FS
252128S
925B001
I
P
35 52 51
2011A
TE
2011L
TI
I
P
I
P
3421L
PI
3431L
PI
208406_E0_5
CV
713138C
PT
313138C
PT4043C
3444A
LS
108704_E0_2
34
205612_CX_3
20.5612_CX_1
CV
740108C
205610_E0_6
205610_E0_1
205610_E0_2
205610_E0_4
I
P
I
P
3421C
PT
3421A
PT
3446A
LS
108744_E0_2
3411A
TE
3411L
TI
G G
205551_E0_1
205551_E0_2
2055A
LS
2061A
FS
2062A
FS
208447_E0_3
208447_E0_4
35274HD
I
P
4341C
PT
358353_E0_2
308650_E0_1
308605_E0_6
CV
744148C
CV
746168C
ST
511112S
ST
510104C
7221C
CV
7222C
CV
7231C
CV
7232C
CV
I
P
I
P
105562_C1_2
105562_C2_2
105562_C3_2
105562_C4_2
105562_C5_2
105562_C6_2
105562_C7_2
105562_C8_2
105562_E0_1
105562_E0_2
3461C
PT
3462C
PT
105562_E0_3
35.36HB
3/2WAY VALVE
354605_E0_6
354605_E0_5
35.36HA
3/2WAY VALVE
35342HA
35.36HC
3/2WAY VALVE
354605_E0_8
35342HB 354605_E0_9
354605_E0_7
I
P
35351HA
4401L
PI
4401A
PT
4411A
PT
4411L
PI
35274HA
3519HA
3523HA
I
P
I
P
4421A
PT
I
P
4421C
PT
354606_E0_2
354606_E0_4
35287HA
354606_E0_3
4521L
TI
4521A
TE
4521S
TS
TE
250108A
33
358606_E0_4
208447_E0_6208447_E0_7
108744_E0_x1
308605_E0_7
07
08
1361L
PI
TE
408188A
358606_E0_3
AE
240108A
2415A
AE
I
P
4302C
PT
2003A
PT
208423_E0_2
50.8135_E0_2
4/2-WAY VALVE
208445_E0_3
910V121910V113
5018C
ZS
105556_E0_1.
105556_E0_3.
7233C
CV
105562_E0_4
105556_E0_2.
CV
748188C
LS
407172A
LS
407576A
PI
400102L
PI
402122L
TI
137172L
TE
138182A
TI
138182L
205610_E0_3
I
P
20.8423_E0_1
INJECTOR OIL SUPPLY VALVE
I
P
258475_E0_1
258475_E0_6
258475_E0_7
25.8475_E0_2
3/3-WAY VALVE
2071C
PT
I
P
2072C
PT
I
P
3124A
PT
7061S
ZV
7003C
CV
1371A
TE
3426A
LS
105562_E0_6
208447_E0_1
108752_E0_10
108752_E0_4
108752_E0_5
108752_E0_6
108752_E0_11
108752_E0_7
108752_E0_8
108752_E0_9
108752_E0_1 108752_E0_2 10 8752_E0_3
208445_E0_1
208445_E0_2
10.5562_E0_5
PRESSURE CONTROL & RELIEV VALVE
205614_E0_1
205614_E0_4
205612_CX_4
205614_E0_5
205612_CX_5
2041A
PT
I
P
205614_E0_6
TE
480108C
LS
435152A
TE
484148C
2056105_E0_7
3411C
TE
108744_E0_4
TE
370108A
TE
370108C
30
I
P
2021A
PT
I
P
2021C
PT
2021L
PI
2031L
TI
105562_E0_8 105562_E0_7
108744_E0_5
PT2021C
208455_E0_2
508135_E0_3
205560_E0_4
7077C
CV
508135_E0_1
I
7077C
XI
K
FUEL RETURN
OUTLET
STARTING AIR
CONTROL AIR
BOARD SUPPLY
79 BAR
E
RAIL UNIT
SLUDGE
SERVICE PUMP
4
OVERFLOW
FUEL
TANK
MAIN OIL
SUPPLY
FUEL
INLET
LDU 20 DISPLAY UNIT
D
B
RETURN
SERVO OIL
5612_CX_2
A
CONTROL AIR
SUPPLY
CONTROL AIR
STAND-BY SUPPLY
E6
Waste gate system is optional
RETURN
SERVO OIL
1
1
6 OUTLETS FOR X52/X62
8 OUTLETS FOR X72
CROSSHEAD
LUBRICATING
OIL
USED ONLY FOR X62/72
Control Diagram
201611

Table of Contents

Other manuals for WinGD X72

Related product manuals