EasyManua.ls Logo

WinGD X72 - Designations

WinGD X72
514 pages
Print Icon
To Next Page IconTo Next Page
To Next Page IconTo Next Page
To Previous Page IconTo Previous Page
To Previous Page IconTo Previous Page
Loading...
Operation40032/A0
Winterthur Gas & Diesel Ltd.
2/ 7
4. Process Codes Description
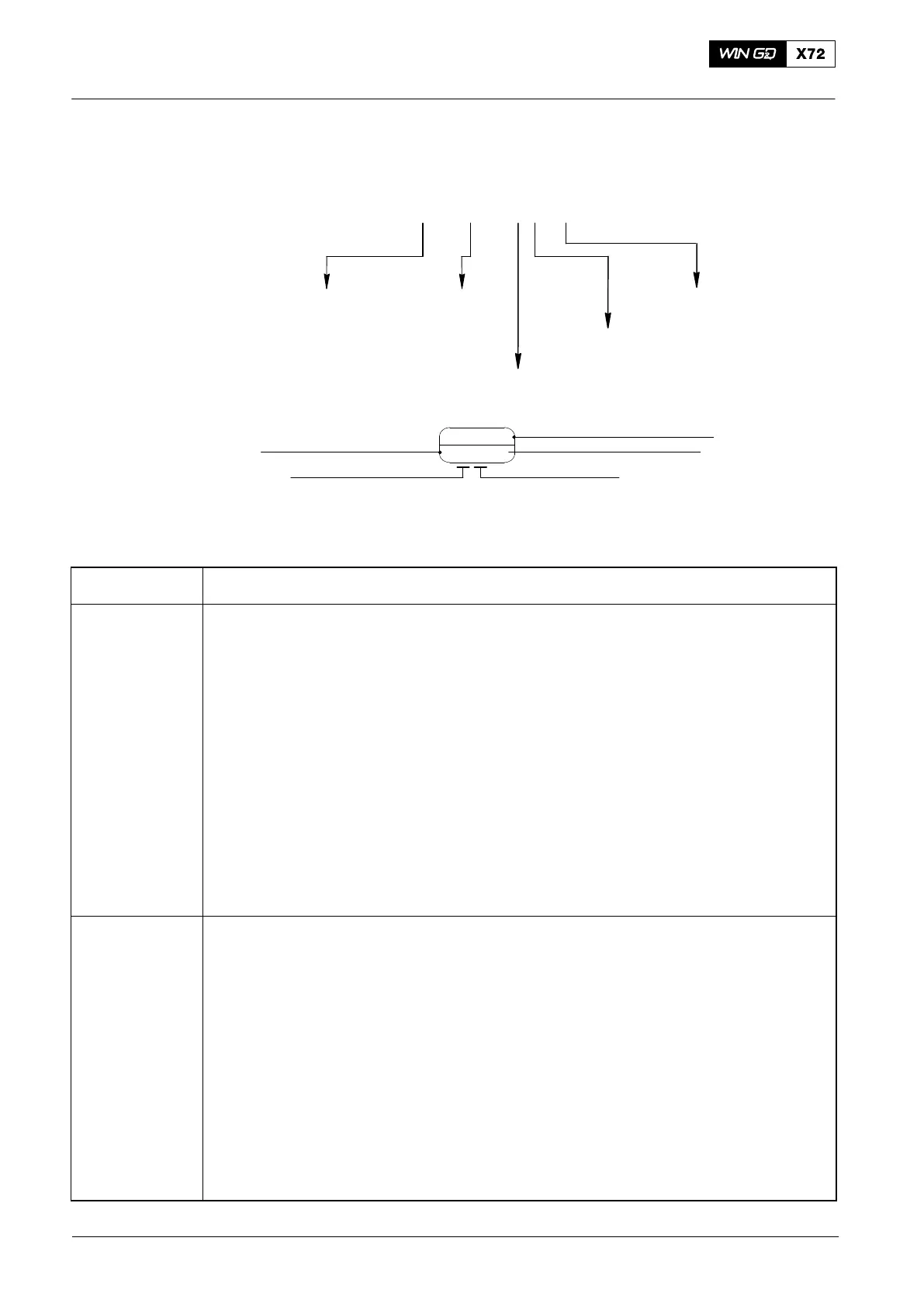
The process codes and their descriptions are shown in Fig. 1 and Table 3.
10-5556_E0_1
System
Design Group
Cylinder e.g. E5 = Engines with five or more cylinders
0 = for all Cylinders
Running Number
Code for systems
Signal from / to engine
Type of Circuit
Number
ZS
5123 C
Code to identify the function
Fig. 1: Process Codes Identification
Table 3: Process Codes Descriptions
Process Code Description
102710_CX_Y Fuel injection valve (L’Orange)
105556_E0_1 Fuel pump 1
105556_E0_2 Fuel pump 2
105556_E0_3 Fuel pump 3
105562_E0_1 Single wall fuel rail
105562_E0_5 Pressure control valve
105562_C#_2 Flow limiter valve cyl. 1
105562_E0_2 Non return valve
105562_E0_3 Non return valve
105562_E0_4 Non return valve
108704_E0_2 Adjustable pressure retaining valve
205551_E0_1 Servo oil pump 1
205551_E0_2 Servo oil pump 2
205610_E0_6 Single wall servo oil rail
205612_CX_1 Valve control unit
205612_CX_2 4/2-way valve
205612_CX_3 Filter VCU
208423_E0_1 Injector oil supply valve
208423_E0_2 Ball valve
208423_E0_8 Filter, fuel pump 1
208423_E0_9 Filter, fuel pump 2
2016-01
Designations

Table of Contents

Other manuals for WinGD X72

Related product manuals