EasyManua.ls Logo

WinGD X72 - 6735-1;A1

WinGD X72
514 pages
Print Icon
To Next Page IconTo Next Page
To Next Page IconTo Next Page
To Previous Page IconTo Previous Page
To Previous Page IconTo Previous Page
Loading...
Operation
67351/A1
Winterthur Gas & Diesel Ltd.
1/ 4
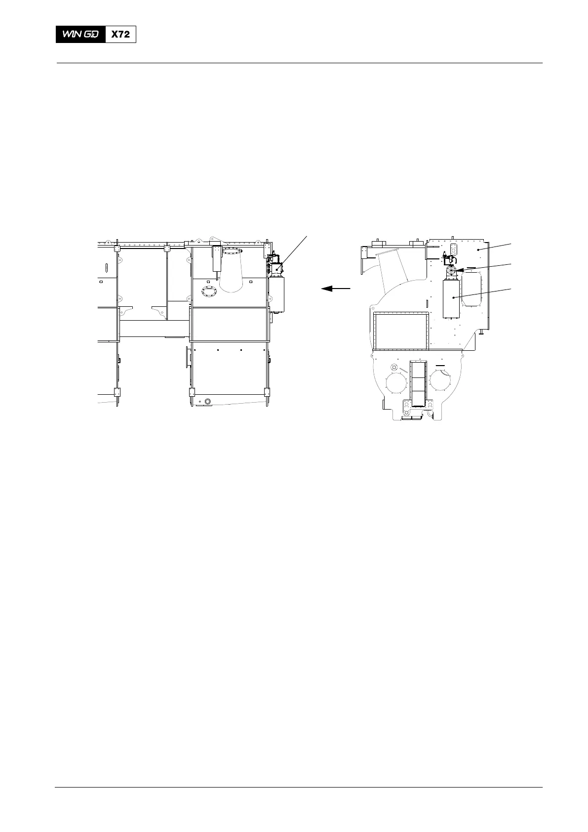
Scavenge Air Waste Gate
1. General
Some engine versions have a scavenge air waste gate, which protects the engine
from scavenge air pressure that is too high in arctic conditions (when the outside air
temperature is below -5_C). The waste gate operates as a safety valve, i. e. the
overpressure is blown off into the engine room.
1
2
3
I
FREE END
EXHAUST SIDE
2
WCH02624
Fig. 1: Location of Scavenge Air Waste Gate
1 Scavenge air receiver 3 Silencer
2 Waste gate valve
2015-03

Table of Contents

Other manuals for WinGD X72

Related product manuals