EasyManua.ls Logo

WinGD X92 - Page 394

Default Icon
574 pages
Print Icon
To Next Page IconTo Next Page
To Next Page IconTo Next Page
To Previous Page IconTo Previous Page
To Previous Page IconTo Previous Page
Loading...
Maintenance55561/A1
Winterthur Gas & Diesel Ltd.
8/ 18
4. Fuel Pump Assemble
1) Clean all parts of the fuel pump
2) Examine all parts of the fuel pump for
damage. Replace damaged parts with
new items.
3) Replace all O-rings and rod seal rings.
4) Use a low-pressure air supply to make
sure that the bores in the housings and
the pump cylinder (1, Fig. 11) are clear.
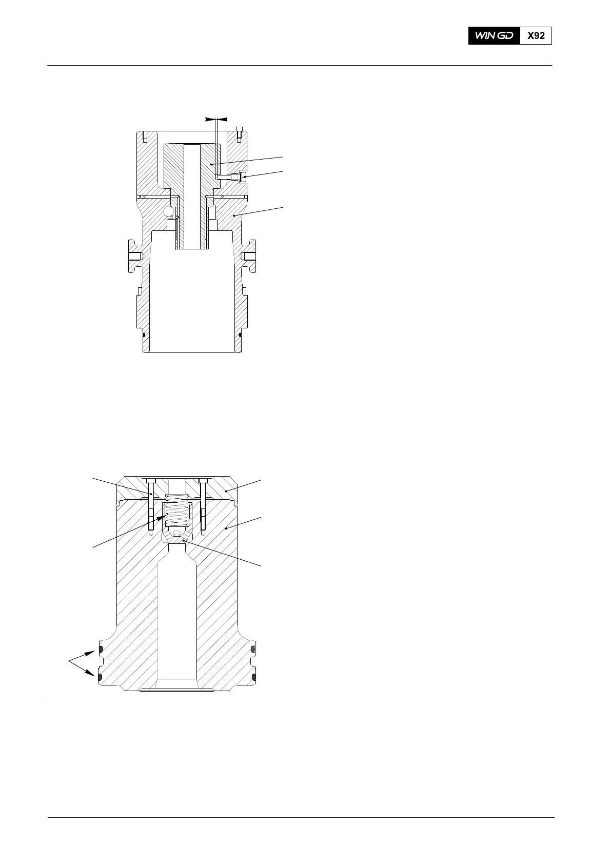
4.1 Pump Cylinder Assemble
1) Make sure that the upper housing (3)
points up in the pump rack 94592.
2) Carefully put the pump cylinder (1) in
the upper housing (3).
3) Align the opening in the pump cylinder
(1) with the bore (2) in the upper
housing (3).
4) Install the screw (2) and the seal
ring (4).
Note: Make sure that there is a clearance
(X) between the end of the screw
(2) and the opening in the pump
cylinder (1).
4.2 Non-return Valve Assemble
1) Make sure that the sealing surfaces of
the valve block (2, Fig. 11) and the
valve body (3) are clean.
2) Put oil on the new O-rings (4).
3) Put the new O-rings (4) on the valve
block (2).
4) Put the spring (5) in position in the valve
body (3).
5) Attach the intermediate disc (1) to the
valve block (2) with the two bolts (6).
6) Torque the two bolts (6) to 4.0 Nm.
Fuel Pump: Disassemble, Assemble
2015
Fig. 11
1
2
3
WCH03053
X
Fig. 11
1
6
5
4
2
3
WCH03053

Table of Contents

Related product manuals