EasyManua.ls Logo

Danfoss VACON 100 FLOW Series - Page 50

Danfoss VACON 100 FLOW Series
334 pages
Print Icon
To Next Page IconTo Next Page
To Next Page IconTo Next Page
To Previous Page IconTo Previous Page
To Previous Page IconTo Previous Page
Loading...
1 +
1
0
V
re
f
2
A
I
1
+
3
A
I1
-
4
A
I
2
+
5
A
I2
-
6 +
2
4V
o
u
t
7
G
N
D
8
D
I
N
1
9
D
I
N
2
1
0
D
I
N
3
1
1
C
M
1
2
+
2
4V
o
u
t
1
3
G
N
D
1
4
D
I
N
4
1
5
D
I
N
5
1
6
D
I
N
6
1
7
C
M
1
8 A
O
1
+
1
9
AO
1
-
3
0 +
2
4V
i
n
A
R
S
4
85
B
R
S
4
85
2
1
R
O
1
2
2
R
O
1
2
3
R
O
1
2
4
R
O
2
2
5
R
O
2
2
6
R
O
2
3
2
R
O
3
3
3
R
O
3
0
A
U
T
O
M
A
N
2
-
W
I
R
E
T
R A
N
S
M
I
T
T
E
R
P
I
P
R
E
S
S
U
R
E
S
E
N
S
O
R
1
1
S
1
2
4
1
3
R
e
f
er
e
n
c
e
vo
l
t
ag
e
N
O
T
U
SE
D
(
0.
.
.
1
0V
)
P
ID
F
E
E
D
B
A
C
K
(
4.
.
.
2
0m
A)
24
V
au
x
i
l
a
ry
v
o
l
t
ag
e
o
ut
I
/O
g
ro
un
d
S
T
AR
T
F
O
R
W
A
R
D
F
L
U
SH
I
N
G
(
St
ar
t F
o
rw
a
r
d
+
F
l
u
sh
i
n
g
F
re
q
.)
P
ID
S
E
T
P
O
IN
T
SE
L
E
C
T
.
(
O
p
e
n
=
Ke
yp
a
d
S
P1
,
C
l
o
s
e
d
=
Ke
y
p
a
d
S
P2
)
C
o
m
m
o
n
fo
r
D
I
1-
D
I6
24
V
au
x
i
l
a
ry
v
o
l
t
ag
e
o
ut
I
/O
g
ro
un
d
F
AU
L
T
R
E
S
ET
P
U
M
P
I
N
T
E
R
L
O
C
K
(
N
o
t
in
u
s
e
by
d
e
f
a
u
l
t
)
E
XT
E
R
N
A
L
F
AU
L
T
C
o
m
m
o
n
fo
r
D
I
1-
D
I6
O
U
T
PU
T
F
R
E
Q
U
EN
C
Y
(
0.
.
.
2
0m
A)
24
V
au
x
i
l
a
ry
v
o
l
t
ag
e
i
n
D
riv
e
-
T
o-
D
r
i
ve
C
o
m
m
u
ni
ca
t
io
n
(
M
od
bu
s
R
T
U)
R
el
a
y
O
u
tp
u
t
1
(
R
U
N
)
R
el
a
y
O
u
tp
u
t
2
(
F
AU
LT
)
R
el
a
y
O
u
tp
u
t
3
(
R
E
AD
Y)
0
A
U
T
O
M
A
N
2
-
W
IR
E
TR
A
N
SM
I
TT
ER
P
I
PR
E
S
SU
R
E
S
E
N
S
O
R
2
2
S
1
2
4
1
3
0
A
U
TO
M
A
N
3
S
1
2
4
1
3
2-
W
IR
E
T
R
AN
S
M
IT
T
ER
P
I
P
R
E
SS
U
R
E
SE
N
S
O
R
3
FL
O
A
T
G
N
D
D
I
O
´
S
U
I
A
I
1
U
I
A
I
2
U
I
AO
O
F
F
O
N
R
S4
8
5
t
e
r
mi
n
a
t
i
o
n
F
L
O
AT
G
N
D
D
I
O
´S
U
I
AI
1
U
I
AI
2
U
I
AO
O
F
F
O
N
R
S4
8
5
t
e
rm
i
n
a
t
i
o
n
F
L
O
AT
G
N
D
D
I
O
´S
U
I
AI
1
U
I
AI
2
U
I
AO
O
F
F
O
N
R
S4
8
5
t
e
rm
i
n
a
t
i
o
n
1
+
10
V
re
f
2
A
I1
+
3
A
I1
-
4
A
I2
+
5
A
I2
-
6
+
24
V
ou
t
7
G
N
D
8 D
IN
1
9 D
IN
2
10 D
IN
3
11
C
M
12
+
24
V
ou
t
13
G
N
D
14 D
IN
4
15 D
IN
5
16 D
IN
6
17
C
M
18
AO
1
+
19 A
O
1 -
30
+
24
V
in
A R
S
48
5
B R
S
48
5
21
R
O
1
22
R
O
1
23
R
O
1
24
R
O
2
25
R
O
2
26
R
O
2
32
R
O
3
33
R
O
3
R
efe
re
nc
e
vo
lta
ge
N
OT
U
SE
D
(0
...
10
V
)
PI
D
F
E
ED
BA
C
K
(4
...
20
m
A
)
24
V
au
xi
lar
y
vo
lta
ge
o
ut
I/O
g
ro
un
d
ST
AR
T
F
O
R
W
AR
D
F
LU
S
H
IN
G
(S
ta
rt
F
or
w
ar
d
+
F
lu
sh
in
g F
re
q.)
PI
D
S
ET
P
O
IN
T
S
EL
E
C
T.
(Op
en
=
Ke
yp
ad
S
P
1,
C
lo
se
d=
Ke
yp
ad
S
P
2)
C
om
m
on
fo
r D
I1
-D
I6
24
V
au
xi
lar
y
vo
lta
ge
o
ut
I/O
g
ro
un
d
F
AU
LT
R
ES
ET
PU
M
P
IN
T
ER
LO
C
K
(N
ot
in
us
e
by
d
ef
au
lt)
EX
TE
R
N
AL
F
A
U
LT
C
om
m
on
fo
r D
I1
-D
I6
O
U
T
PU
T
F
R
E
Q
U
EN
C
Y
(0..
.2
0m
A
)
24
V
au
xi
lar
y
vo
lta
ge
in
D
riv
e-
T
o-
D
ri
ve
C
om
m
un
ic
at
io
n
(M
od
bu
s
R T
U
)
R
el
ay
O
ut
pu
t 1
(R
U
N
)
R
el
ay
O
ut
pu
t 2
(F
AU
LT
)
R
el
ay
O
ut
pu
t 3
(R
EA
D
Y
)
1
+
10
V
re
f
2
AI
1
+
3
A
I1
-
4
AI
2
+
5
A
I2
-
6
+
24
V
ou
t
7
G
N
D
8 D
IN
1
9 D
IN
2
10
D
IN
3
11
C
M
12
+
24
V
ou
t
13
G
N
D
14
D
IN
4
15
D
IN
5
16
D
IN
6
17
C
M
18
A
O
1
+
19 A
O
1
-
30
+
24
V
in
A R
S4
85
B R
S4
85
21
R
O
1
22
R
O
1
23
R
O
1
24
R
O
2
25
R
O
2
26
R
O
2
32
R
O
3
33
R
O
3
R
ef
er
en
ce
v
ol
ta
g
e
N
O
T
U
SE
D
(0
...
10
V)
P
ID
F
E
ED
BA
C
K
(4
...
20
m
A
)
24
V
au
xi
lar
y
vo
lta
ge
ou
t
I/
O
g
ro
un
d
S
TA
R
T
F
O
R
W
A
R
D
FL
U
SH
IN
G
(S
ta
rt
F
or
w
ar
d
+
F
lus
hi
ng
F
re
q.
)
P
ID
S
ET
PO
IN
T
S
EL
EC
T
.
(O
pe
n
=
Ke
yp
ad
S
P1
,
C
lo
s
ed
=
Ke
y
pa
d
SP
2)
C
om
m
on
fo
r
D
I1
-D
I
6
24
V
au
xi
lar
y
vo
lta
ge
ou
t
I/
O
g
ro
un
d
FA
U
LT
R
E
SE
T
P
U
M
P
IN
T
ER
LO
C
K
(N
ot
in
u
se
b
y
de
f
au
lt
)
E
XT
ER
N
A
L
FA
U
LT
C
om
m
on
fo
r
D
I1
-
D
I
6
O
U
TP
U
T
F
R
EQ
U
EN
C
Y
(0
...
20
m
A
)
24
V
au
xi
lar
y
vo
lta
ge
in
D
ri
ve
-T
o-
D
ri
ve
C
om
m
un
ic
at
io
n
(M
od
bu
s
R
T
U
)
R
el
ay
O
ut
pu
t
1
(R
U
N
)
R
el
ay
O
ut
pu
t
2
(F
AU
LT
)
R
el
ay
O
ut
pu
t
3
(R
EA
D
Y)
V
A
C
O
N
1
0
0
F
L
O
W
P
1
.
2
A
p
p
l
i
ca
t
i
o
n
=
M
ul
t
ip
u
m
p(
M
ul
t
i
D
ri
v
e
)
P
3
.
1
5
.
3
P
u
m
p
I
D
N
u
m
b
er
=
1
P
3
.
1
5
.
4
S
t
a
rt
&
F
ee
d
ba
c
k
=
Si
g
n
al
s
C
on
n
ec
t
e
d
V
A
C
O
N
1
0
0
F
L
O
W
P1
.2
A
pp
lic
at
io
n
=
M
ul
tip
um
p(
M
ult
iD
ri
ve
)
P3
.15
.3
P
um
p
ID
N
um
be
r
=
2
P3
.15
.4
S
ta
rt
&
Fe
ed
ba
ck
=
S
ig
na
ls
C
on
ne
ct
ed
V
A
C
O
N
1
0
0
F
L
O
W
P
1.
2
A
pp
lic
ati
on
=
M
ult
ip
um
p
(
M
ul
t
iD
riv
e)
P
3.
15
.3
P
um
p
ID
N
um
be
r
=
3
P
3.
15
.4
S
ta
rt
&
F
ee
db
ac
k
=
S
ig
na
ls
C
on
ne
c
t
ed
+
-
0
P
I
2
4
1
3
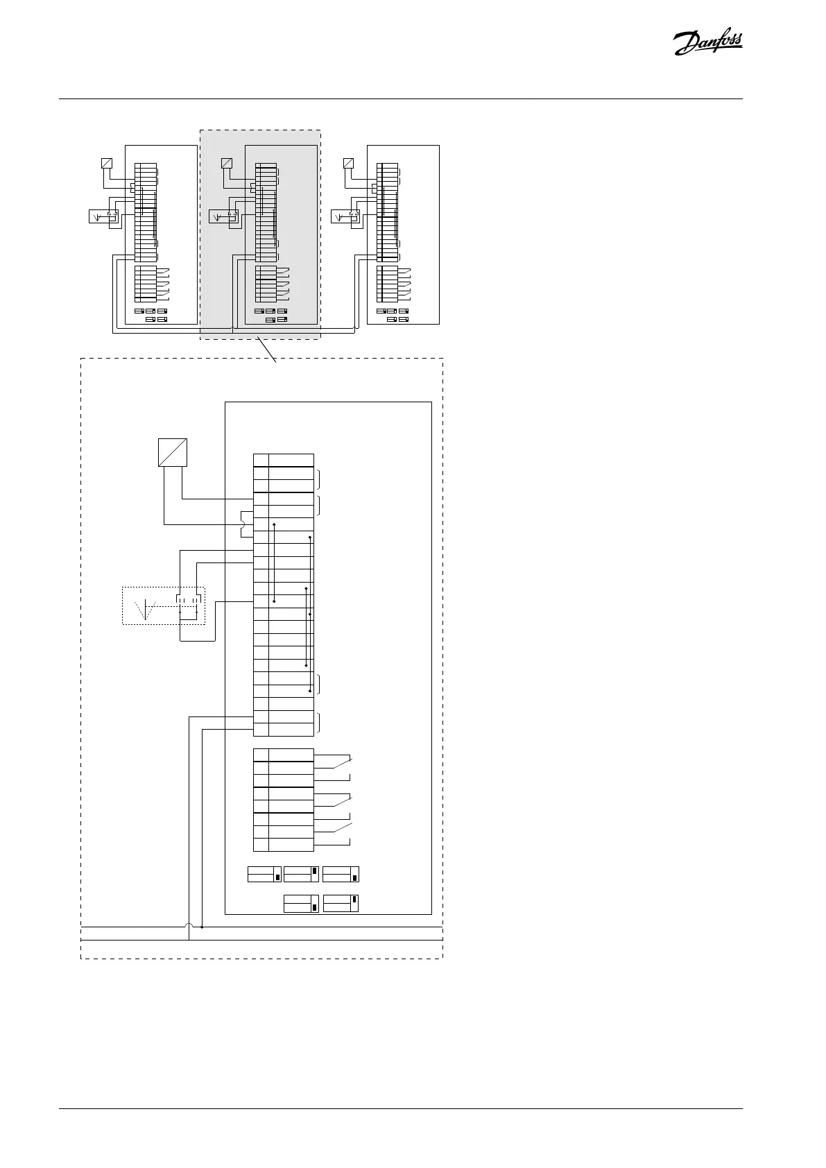
DRIVE 1
VACON 100 FLOW
P1.2 Application = Multipump(MultiDrive)
P3.15.3 Pump ID Number = 1
P3.15.4 Start & Feedback = Signals Connected
2-WIRE
TRANSMITTER
PRESSURE
SENSOR 1
Reference voltage
NOT USED (0...10V)
OUTPUT FREQUENCY
(0...20mA)
PID FEEDBACK (4...20mA)
24V auxilary voltage out
24V auxilary voltage in
I/O ground
I/O ground
FAULT RESET
EXTERNAL FAULT
START FORWARD
Common for DI1-DI6
Common for DI1-DI6
24V auxilary voltage out
PUMP INTERLOCK
(Not in use by default)
Drive-To-Drive
Communication
(Modbus RTU)
Relay Output 1
(RUN)
Relay Output 2
(FAULT)
Relay Output 3
(READY)
FLUSHING
(Start Forward + Flushing Freq.)
PID SETPOINT SELECT.
(Open=Keypad SP1, Closed=Keypad SP2)
DIO´S
FLOAT
GND
U
1
2
3
4
5
6
7
8
9
10
11
12
13
14
15
16
17
18
19
30
A
B
21
22
23
24
25
26
32
33
RO1
RO1
RO1
RO2
RO2
RO2
RO3
RO3
+10V
ref
AI2+
AI1-
AI2+
AI2-
+24V
out
GND
DIN1
DIN2
DIN3
CM
+24V
out
GND
DIN4
DIN5
DIN6
CM
AO1+
AO1-
+24V
in
RS485
RS485
I
U
I
U
I
OFF
ON
AI1
AI2
AO
RS485
termination
AUTO
MAN
1S1
DRIVE 1
DRIVE 2 DRIVE 3
e30bi991.10
Illustration 21: Electric Wiring Diagram of the Multi-pump (Multidrive) System, Example 1B
AB298035655957en-000201 / DPD0108350 | Danfoss A/S © 2023.08
Applications
VACON® 100 FLOW
Application Guide

Table of Contents

Related product manuals