EasyManua.ls Logo

Huawei iSitePower - DC Air Conditioner PC3000 D-2

Huawei iSitePower
179 pages
Print Icon
To Next Page IconTo Next Page
To Next Page IconTo Next Page
To Previous Page IconTo Previous Page
To Previous Page IconTo Previous Page
Loading...
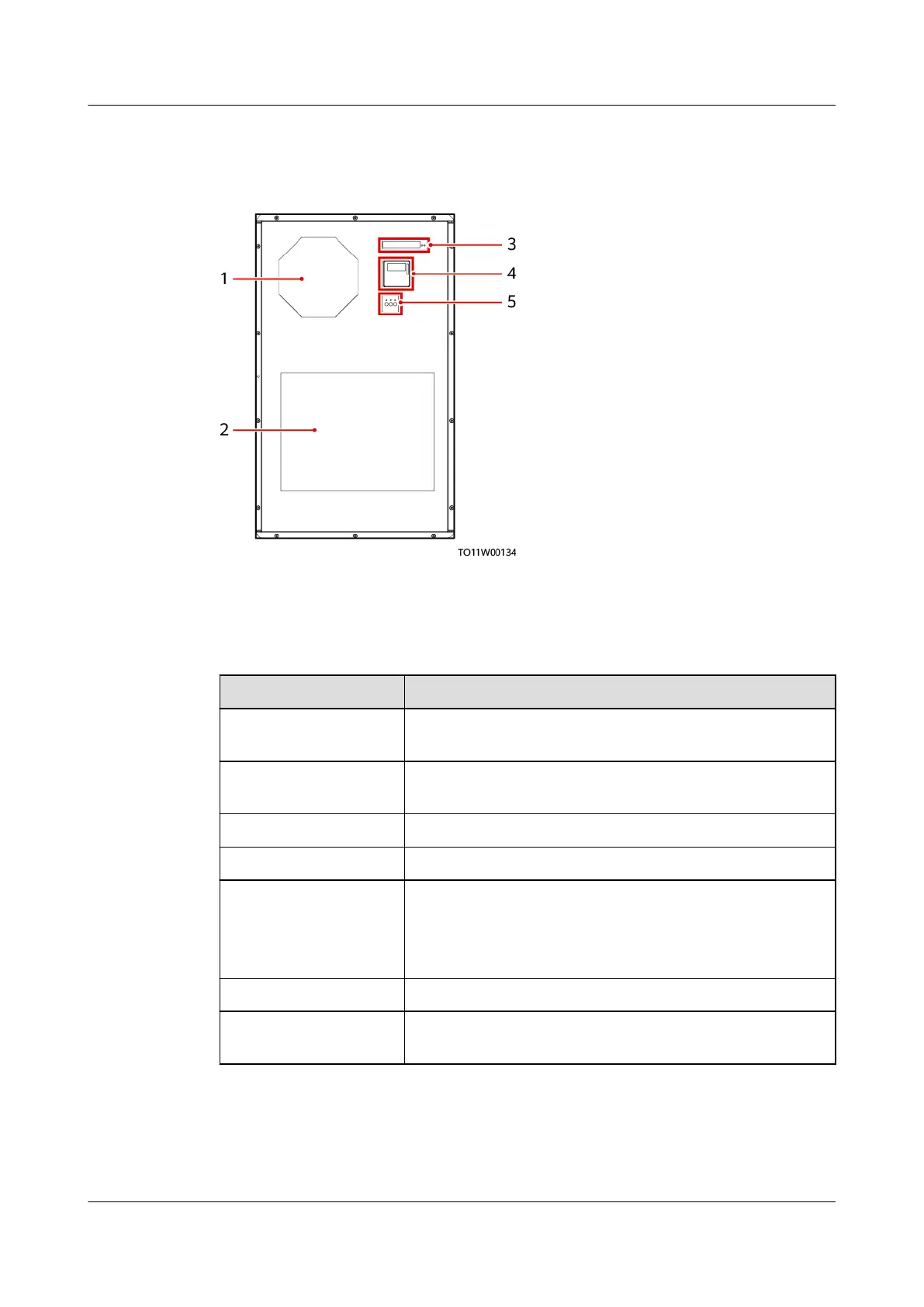
3.2.26 DC Air Conditioner PC3000D-2
Figure 3-58 Appearance
(1) Air return vent (2) Air exhaust vent (3) Communications port
(4) Display panel (5) Power port
Table 3-59 Specications
Item
Specications
Rated power (L35/
L35)
≤ 950 W
Rated cooling capacity
(L35/L35)
≥ 3000 W x 92.5%
Input voltage –48 V DC
Ambient temperature –15°C to +55°C
Altitude 0–4000 m
(When the altitude ranges from 2000 m to 4000 m, the
operating temperature decreases by 1°C for each
additional 200 m.)
Relative humidity 5%–95% RH
Noise GR487, maximum acoustic pressure level: ≤ 65 dB(A) at
1.5 m
iSitePower Integrated Smart Site (ICC1000-A1-E1)
User Manual 3 Components
Issue 04 (2022-10-15) Copyright © Huawei Technologies Co., Ltd. 78

Table of Contents

Related product manuals