EasyManua.ls Logo

Huawei iSitePower - DC Air Conditioner PC1500 D-1

Huawei iSitePower
179 pages
Print Icon
To Next Page IconTo Next Page
To Next Page IconTo Next Page
To Previous Page IconTo Previous Page
To Previous Page IconTo Previous Page
Loading...
3.2.27 DC Air Conditioner PC1500D-1
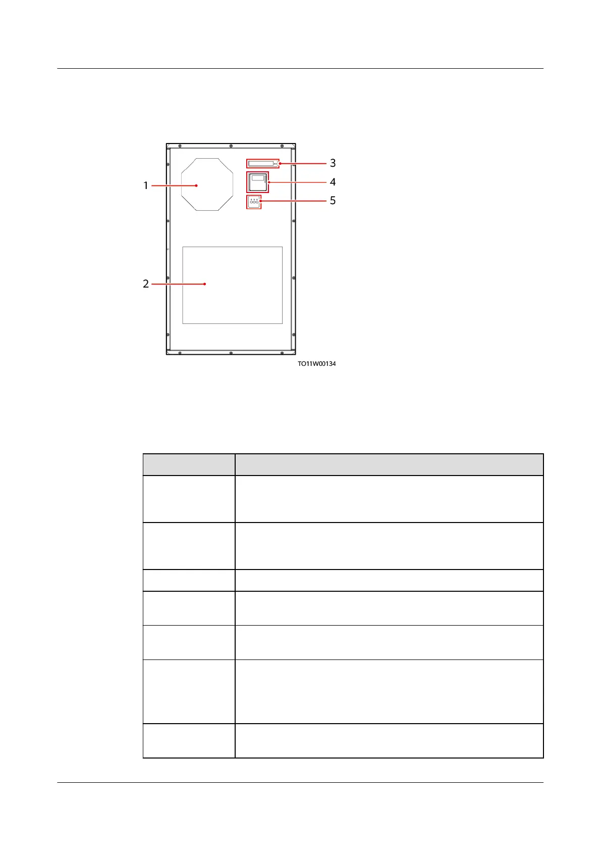
Figure 3-59 PC1500D-1 appearance
(1) Air intake vent (2) Air return vent (3) Communications cable port
(4) LCD (5) Power cable port
Table 3-60 PC1500D-1 specications
Item
Specications
Rated power/
current (L35/
L35)
≤ 500 W
Rated cooling
capacity (L35/
L35)
≥ 1600 W at a return air temperature of 35°C and an
ambient temperature of 35°C
Input voltage –48 V DC (–44 V DC to –57 V DC)
Ambient
temperature
–15°C to +55°C
Alarm reporting Reports alarms over dry contacts. Normal: closed; faulty:
open
Altitude ≤ 4000 m
When the altitude ranges from 2000 m to 4000 m, the
operating temperature decreases by 1°C for each additional
200 m.
Relative
humidity
5%–95% RH
iSitePower Integrated Smart Site (ICC1000-A1-E1)
User Manual 3 Components
Issue 04 (2022-10-15) Copyright © Huawei Technologies Co., Ltd. 79

Table of Contents

Related product manuals