EasyManua.ls Logo

Lenovo ThinkSystem SR650 V2 - Page 154

Lenovo ThinkSystem SR650 V2
442 pages
To Next Page IconTo Next Page
To Next Page IconTo Next Page
To Previous Page IconTo Previous Page
To Previous Page IconTo Previous Page
Loading...
8i RAID/HBA adapters + onboard connectors
“Front backplanes: 16 x 2.5-inch SAS/SATA + 8 x 2.5-inch Anybay” on page 144
“Rear backplane: 4 x 2.5-inch SAS/SATA” on page 146
Front backplanes: 16 x 2.5-inch SAS/SATA + 8 x 2.5-inch Anybay
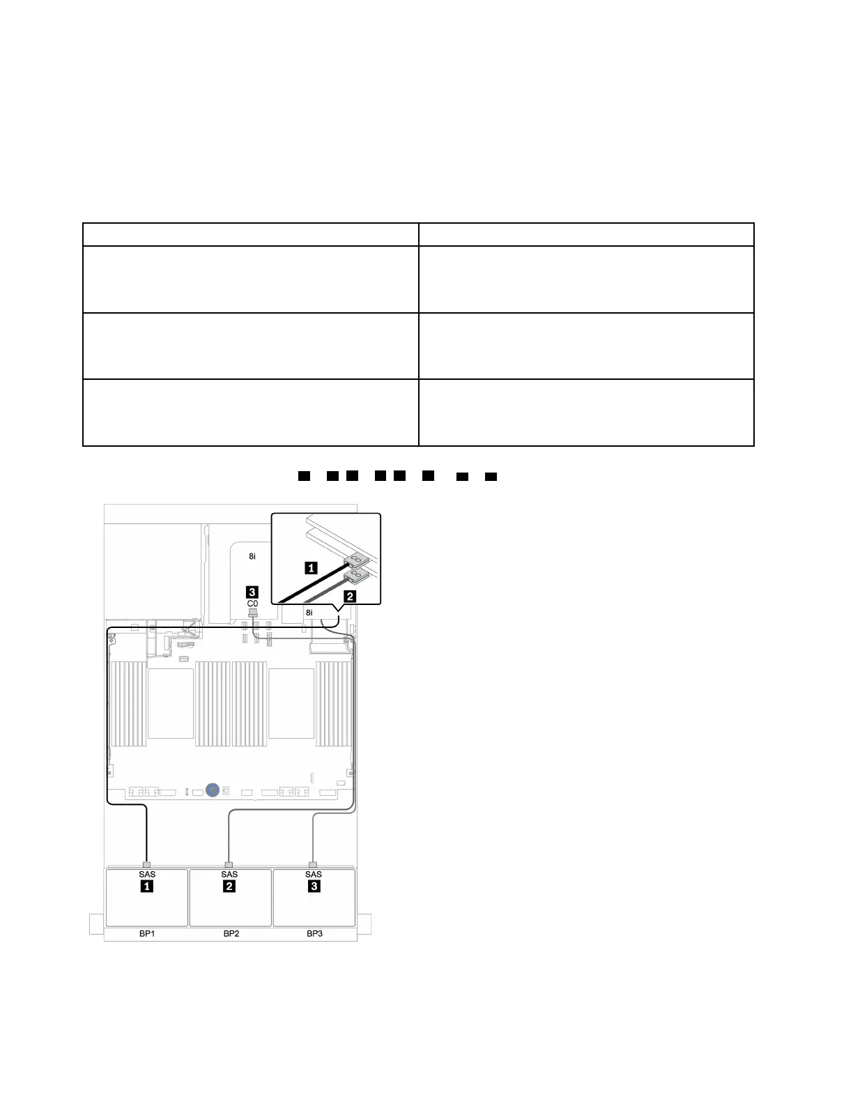
SAS/SATA cable routing
From To
Backplane 1: SAS 8i RAID/HBA adapter on PCIe slot 2:
Gen 3: C0C1
Gen 4: C0
Backplane 2: SAS 8i RAID/HBA adapter on PCIe slot 3:
Gen 3: C0C1
Gen 4: C0
Backplane 3: SAS 8i RAID/HBA adapter on PCIe slot 5:
Gen 3: C0C1
Gen 4: C0
Connections between connectors:
1 1 , 2 2 , 3 3 , ... n n
Figure 98. SAS/SATA cable routing
144 ThinkSystem SR650 V2Maintenance Manual

Table of Contents

Other manuals for Lenovo ThinkSystem SR650 V2

Related product manuals