EasyManua.ls Logo

Lenovo ThinkSystem SR650 V2 - Page 159

Lenovo ThinkSystem SR650 V2
442 pages
To Next Page IconTo Next Page
To Next Page IconTo Next Page
To Previous Page IconTo Previous Page
To Previous Page IconTo Previous Page
Loading...
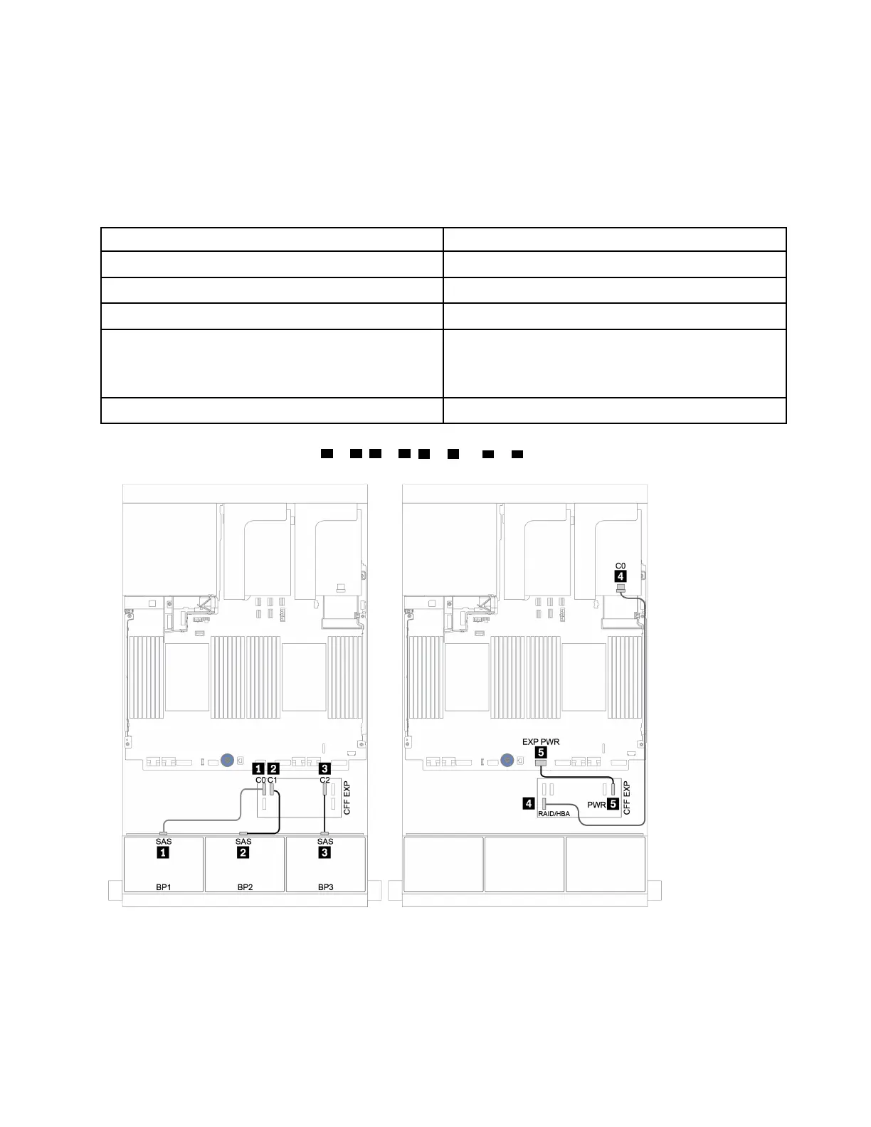
CFF expander + 8i RAID/HBA adapter + onboard connectors
“Front backplanes: 16 x 2.5-inch SAS/SATA + 8 x 2.5-inch Anybay” on page 149
“Rear backplane: 4 x 2.5-inch SAS/SATA” on page 151
Front backplanes: 16 x 2.5-inch SAS/SATA + 8 x 2.5-inch Anybay
SAS/SATA cable routing
From To
Backplane 1: SAS CFF expander: C0
Backplane 2: SAS CFF expander: C1
Backplane 3: SAS CFF expander: C2
CFF expander: RAID/HBA 8i RAID/HBA adapter on PCIe slot 2:
Gen 3: C0C1
Gen 4: C0
CFF expander: PWR Onboard: EXP PWR
Connections between connectors:
1 1 , 2 2 , 3 3 , ... n n
Figure 104. SAS/SATA cable routing
Chapter 3. Internal cable routing 149

Table of Contents

Other manuals for Lenovo ThinkSystem SR650 V2

Related product manuals